まちなかジーヴォ富士五貫島 (分譲住宅)
(分譲住宅)
マイレーティング
検討・比較をするためにこの物件を採点できます。
(採点した物件はお気に入りで確認できます)
【周辺環境】
徒歩10分圏内に教育施設が揃っており、子育てファミリーに嬉しい立地です。
また、商業施設も徒歩圏内にあり日々のお買い物にも便利です。
【ダイワハウスの住宅の魅力】
■高耐震
しなやかに動く「Σ形デバイス」が地震エネルギーを効果的に吸収し、
震度7クラスの地震に連続して耐える粘り強さを発揮します!
■断熱性
独自の「内外ダブル断熱」により屋内の熱を逃がしにくく、
屋外からの熱気や冷気を遮断するため、夏も冬も快適な空間を保ち、冷暖房コストの削減が期待できます。
■長期保証
初期保証30年(構造耐力上主要な部分・雨水の浸入を防止する部分)を実現。
アフターサービスも24時間365日受付いたします。
ご見学随時受付中。お気軽にお問い合わせください。
- 建売
- 建売
- ハウスメーカー
- 大和ハウス工業/ダイワハウス
- 沿線名/駅名
- JR東海道新幹線「新富士」駅
- 総区画数
- 3 区画
- 駅・バス停からの最短時間
ー
- 価格帯
- 5,290万円
- 土地面積
- 186.28㎡
- 所在地
- 静岡県富士市五貫島字上五貫島20番4、20番5
- 沿線名/駅名
- JR東海道新幹線「新富士」駅まで車約6分(約1930m)
JR東海道本線「富士」駅まで車約8分(約2390m)
- 価格帯
- 5,290万円
- 最多価格帯
- -
- 販売戸数/総戸数
- 1戸/3戸
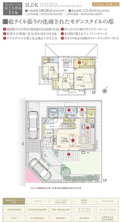
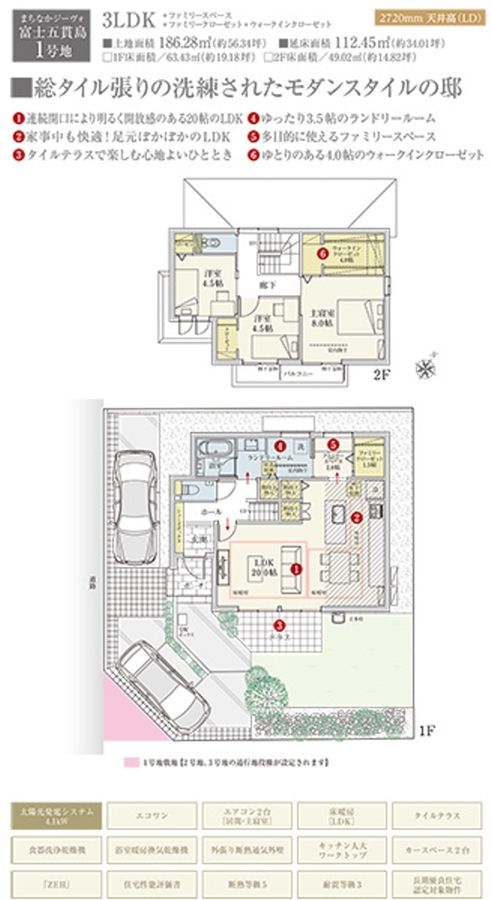
- 間取り
- 3LDK(1号地)
- 建物面積
- 112.45m2(1号地)
- 土地面積
- 186.28m2(1号地) 私道負担なし
この物件のこだわりポイント
質感のあるタイル貼りの外壁と木目調ルーバーにより洗練されたデザインを演出
1階2m72cmの高天井と南側の連続したハイサッシは開放的なリビングを実現
玄関から洗面→ファミリークローゼット→キッチンへと回遊性のある家事動線
- 物件構造
- 軽量鉄骨2階建(1戸)
- 用途地域
- 第一種中高層住居専用地域
- 完成予定日
- 令和7年5月完成済 1戸
- 建築年月
- 令和7年5月完成済 1戸
- 販売時期
- 先着順申込受付中
- その他費用
-
- 引渡可能時期
- 即引渡可 1戸
- 売主
- 大和ハウス工業株式会社
- 販売会社名(取引態様)
- 売主
- 情報提供元
- 大和ハウス工業株式会社
- お問い合わせ先
静岡支店 沼津住宅営業所 富士展示場
- 開発許可または建築確認番号
- 第2024確認建築静建住ま09097号
- 宅建番号その他
大和ハウス工業株式会社 DAIWA HOUSE INDUSTRY CO., LTD.
本社 〒530-8241 大阪市北区梅田3丁目3-5 大和ハウス大阪ビル TEL:0120-590-956
建設業許可番号・国土交通大臣許可(特-2)第5279号
宅地建物取引業者免許番号・国土交通大臣(16)第245号
(一社)大阪府宅地建物取引業協会会員
(一社)不動産協会会員
(公社)近畿地区不動産公正取引協議会加盟
- 備考欄
敷地面積186.28m2のうち、4.51m2の部分には2号地、3号地の通行地役権が設定されます。
- 情報提供日
- 2026-01-19
- 次回更新予定日・取引有効期限
- 2026-01-26
【新生活応援キャンペーン 選べる50ポイント分 成約パッケージ概要】
【対象物件】大和ハウス工業株式会社の分譲住宅【申込条件】2026年1月5日から3月31日までに土地建物売買契約を締結していただける方。●2026年3月31日までにお引渡し可能な方が対象となります。【注意事項】注文住宅をご契約の方は対象外とさせていただきます。●ポイントの使用期限は、土地建物売買契約から30日以内となります。なお、使用期限を過ぎるとポイントは失効とさせていただきます。申し込みは1回限り。余ったポイントは使用することができません。●50ポイントは30万円(税込)相当●プレゼントのお渡し時期については分譲住宅のお引渡し後となります。●他のキャンペーン・割引制度との併用など、詳しくは担当者にお尋ねください。
静岡県富士市周辺マップ
- ※分譲地は地図中心の赤いピン付近に所在します。(実際の物件所在地から多少ずれることがあります)
- ※地図上に表示される物件・施設の情報はおおよその所在地を表すものであり、実際の所在地とは異なる場合がございます。
- ※周辺施設は、分譲地の所在地から半径3km以内の施設(大型施設は半径5km以内)のみを表示しています。
- 徒歩
- 電車
- この機能は準備中です。
- 車
- ※上記に表示されている地図・ルート検索・周辺施設情報は、Google社が提供するGoogleMapより物件の所在地に合わせて取得しております。そのため、表示されている施設情報および物件からの距離・移動時間などは実際と異なる場合があります。正確な情報は各分譲地にお問い合わせください。
ダイワハウス / 静岡支店
静岡県静岡市駿河区石田1-3-29 定休日:火曜日・水曜日
お電話の際には「家選びネットを見た」とお問い合わせください。
- ※定休日などにより、お問い合わせのお返事にお時間をいただく場合がございます。
- ※お急ぎの方は上記の電話番号より直接ご連絡ください。












































