セキュレア世田谷代田1丁目 (分譲住宅)
(分譲住宅)
マイレーティング
検討・比較をするためにこの物件を採点できます。
(採点した物件はお気に入りで確認できます)
~下北沢に徒歩圏内で利便性の良さが魅力の住まい~
小田急電鉄小田原線「世田谷代田」駅 徒歩8分
小田急電鉄小田原線「梅ヶ丘」駅 徒歩12分
小田急電鉄小田原線・京王電鉄井の頭線「下北沢」駅 徒歩14分
と、複数の駅へのアクセスが良好な分譲地です。
世田谷区立代沢小学校、葵みこころ保育園と、教育施設も徒歩圏内。
下北沢駅周辺はショッピングモールが立ち並ぶ活気のあるエリア。
スーパーやドラッグストア、医療施設などの日々の暮らしに必要な施設も揃う暮らしやすいロケーションです。
さらに、すみれ公園、羽根木公園、代沢せせらぎ公園もあり、緑豊かな公園での散策やレジャーが楽しめます。
落ち着いた住環境ながら利便性が良いこの分譲地で、充実した新生活を始めませんか?
お気軽にお問合せください。
- 建売
- 建売
- ハウスメーカー
- 大和ハウス工業/ダイワハウス
- 沿線名/駅名
- 小田急電鉄小田原線「世田谷代田」駅
- 総区画数
- 2 区画
- 駅・バス停からの最短時間
- 8分
- 価格帯
未定
- 土地面積
- 106.97㎡-
113.8㎡
- 所在地
- 東京都世田谷区代田1丁目390-7他
- 沿線名/駅名
- 小田急電鉄小田原線「世田谷代田」駅まで徒歩8分
小田急電鉄小田原線「梅ヶ丘」駅まで徒歩12分
小田急電鉄小田原線・京王電鉄井の頭線「下北沢」駅まで徒歩14分
- 価格帯
- 未定
- 最多価格帯
- 未定
- 販売戸数/総戸数
- 2戸/2戸
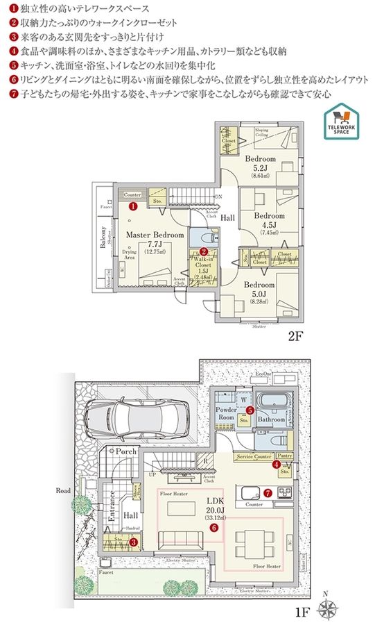
- 間取り
- 4LDK(1号地、2号地)
- 建物面積
- 110.30m2(1号地)、110.79m2(2号地)
- 土地面積
- 106.97m2(1号地)、113.80m2(2号地) 全て私道負担なし
この物件のこだわりポイント
3駅2路線が徒歩圏内で通勤・通学にも便利な立地。
下北沢駅周辺には魅力的なショッピングモールが多数あり。
教育施設や緑豊かな公園なども徒歩圏内で、子育て世帯にも嬉しい住環境。
- 予告広告
- この物件は予告広告です。販売開始までは、契約または予約の申込み・申込み順位の確保はできません。詳しい情報は「資料請求」にてご確認ください。
- 物件構造
- 軽量鉄骨2階建(2戸)
- 用途地域
- 第一種低層住居専用地域
- 完成予定日
- 令和7年12月完成済 2戸
- 建築年月
- 令和7年12月完成済 2戸
- 販売時期
- 令和8年1月中旬予定
- その他費用
-
- 引渡可能時期
- 令和8年2月予定 2戸
- 売主
- 大和ハウス工業株式会社
- 販売会社名(取引態様)
- 売主
- 情報提供元
- 大和ハウス工業株式会社
- お問い合わせ先
東京本店 住宅事業部
- 開発許可または建築確認番号
- 第ERI-25022621号他
- 宅建番号その他
大和ハウス工業株式会社 DAIWA HOUSE INDUSTRY CO., LTD.
本社 〒530-8241 大阪市北区梅田3丁目3-5 大和ハウス大阪ビル TEL:0120-590-956
建設業許可番号・国土交通大臣許可(特-2)第5279号
宅地建物取引業者免許番号・国土交通大臣(16)第245号
(一社)大阪府宅地建物取引業協会会員
(一社)不動産協会会員
(公社)近畿地区不動産公正取引協議会加盟
- 備考欄
【お詫びと訂正】
令和7年12月24日まで公開していたホームページにおいて
区立世田谷中学校 徒歩14分~15分と表示しておりましたが、区立富士中学校 徒歩19分の誤りでした。
お詫びと共に訂正いたします。
-------------------------------------
1号地敷地面積:106.97m2(他にセットバック部分の面積1.62m2あり)
2号地敷地面積:113.80m2(他にセットバック部分の面積0.49m2あり)
1号地延床面積110.30m2には宅配BOX部分0.17m2が含まれます。
- 情報提供日
- 2026-01-15
- 次回更新予定日・取引有効期限
- 2026-01-22
【新生活応援キャンペーン 選べる50ポイント分 成約パッケージ概要】
【対象物件】大和ハウス工業株式会社の分譲住宅【申込条件】2026年1月5日から3月31日までに土地建物売買契約を締結していただける方。●2026年3月31日までにお引渡し可能な方が対象となります。【注意事項】注文住宅をご契約の方は対象外とさせていただきます。●ポイントの使用期限は、土地建物売買契約から30日以内となります。なお、使用期限を過ぎるとポイントは失効とさせていただきます。申し込みは1回限り。余ったポイントは使用することができません。●50ポイントは30万円(税込)相当●プレゼントのお渡し時期については分譲住宅のお引渡し後となります。●他のキャンペーン・割引制度との併用など、詳しくは担当者にお尋ねください。
東京都世田谷区周辺マップ
- ※分譲地は地図中心の赤いピン付近に所在します。(実際の物件所在地から多少ずれることがあります)
- ※地図上に表示される物件・施設の情報はおおよその所在地を表すものであり、実際の所在地とは異なる場合がございます。
- ※周辺施設は、分譲地の所在地から半径3km以内の施設(大型施設は半径5km以内)のみを表示しています。
- 徒歩
- 電車
- この機能は準備中です。
- 車
- ※上記に表示されている地図・ルート検索・周辺施設情報は、Google社が提供するGoogleMapより物件の所在地に合わせて取得しております。そのため、表示されている施設情報および物件からの距離・移動時間などは実際と異なる場合があります。正確な情報は各分譲地にお問い合わせください。
ダイワハウス / 東京本店
東京都千代田区飯田橋3-13-1 定休日:火曜日・水曜日
お電話の際には「家選びネットを見た」とお問い合わせください。
- ※定休日などにより、お問い合わせのお返事にお時間をいただく場合がございます。
- ※お急ぎの方は上記の電話番号より直接ご連絡ください。






































