- 建売
- 建売
- ハウスメーカー
- 大和ハウス工業/ダイワハウス
- 沿線名/駅名
- 近鉄京都線「伊勢田」駅
- 総区画数
- 2 区画
- 駅・バス停からの最短時間
- 16分
- 価格帯
- 4,990万円-
5,090万円
- 土地面積
- 117.65㎡
- 所在地
- 京都府宇治市広野町新成田100番34他
- 沿線名/駅名
- 近鉄京都線「伊勢田」駅まで徒歩16分
近鉄京都線「大久保」駅まで徒歩18分
JR奈良線「新田」駅まで徒歩22分
- 価格帯
- 4,990万円~5,090万円
- 最多価格帯
- -
- 販売戸数/総戸数
- 2戸/2戸
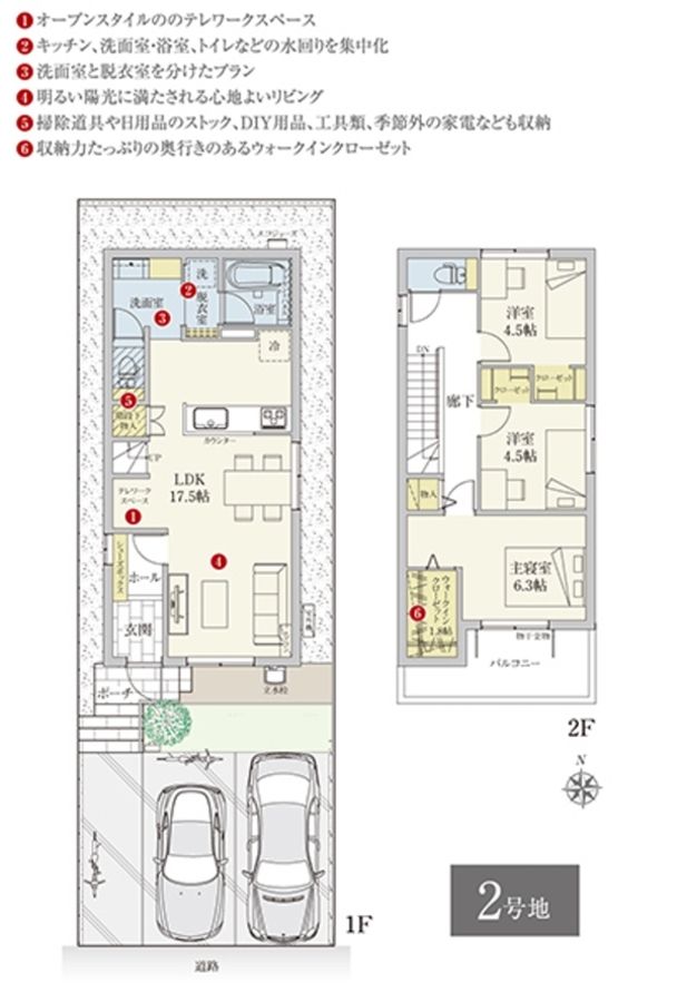
- 間取り
- 3LDK(1号地、2号地)
- 建物面積
- 93.90m2(1号地)、93.49m2(2号地)
- 土地面積
- 117.65m2(1号地)、117.65m2(2号地) 全て私道負担なし
この物件のこだわりポイント
南道路の区画
近鉄京都線「大久保」駅 近鉄京都線「伊勢田」駅Wアクセス可
太陽光発電システム搭載
- 物件構造
- 軽量鉄骨2階建(2戸)
- 用途地域
- 第一種低層住居専用地域
- 完成予定日
- 令和7年9月完成済 2戸
- 建築年月
- 令和7年9月完成済 2戸
- 販売時期
- 先着順申込受付中
- その他費用
-
- 引渡可能時期
- 即引渡可 2戸
- 売主
- 大和ハウス工業株式会社
- 販売会社名(取引態様)
- 売主
- 情報提供元
- 大和ハウス工業株式会社
- お問い合わせ先
京都支店 分譲店
- 開発許可または建築確認番号
- 第25WHEC確建京00307号他
- 宅建番号その他
大和ハウス工業株式会社 DAIWA HOUSE INDUSTRY CO., LTD.
本社 〒530-8241 大阪市北区梅田3丁目3-5 大和ハウス大阪ビル TEL:0120-590-956
建設業許可番号・国土交通大臣許可(特-2)第5279号
宅地建物取引業者免許番号・国土交通大臣(16)第245号
(一社)大阪府宅地建物取引業協会会員
(一社)不動産協会会員
(公社)近畿地区不動産公正取引協議会加盟
- 情報提供日
- 2026-01-16
- 次回更新予定日・取引有効期限
- 2026-01-23
【新生活応援キャンペーン 選べる50ポイント分 成約パッケージ概要】
【対象物件】大和ハウス工業株式会社の分譲住宅【申込条件】2026年1月5日から3月31日までに土地建物売買契約を締結していただける方。●2026年3月31日までにお引渡し可能な方が対象となります。【注意事項】注文住宅をご契約の方は対象外とさせていただきます。●ポイントの使用期限は、土地建物売買契約から30日以内となります。なお、使用期限を過ぎるとポイントは失効とさせていただきます。申し込みは1回限り。余ったポイントは使用することができません。●50ポイントは30万円(税込)相当●プレゼントのお渡し時期については分譲住宅のお引渡し後となります。●他のキャンペーン・割引制度との併用など、詳しくは担当者にお尋ねください。
京都府宇治市周辺マップ
- ※分譲地は地図中心の赤いピン付近に所在します。(実際の物件所在地から多少ずれることがあります)
- ※地図上に表示される物件・施設の情報はおおよその所在地を表すものであり、実際の所在地とは異なる場合がございます。
- ※周辺施設は、分譲地の所在地から半径3km以内の施設(大型施設は半径5km以内)のみを表示しています。
- 徒歩
- 電車
- この機能は準備中です。
- 車
- ※上記に表示されている地図・ルート検索・周辺施設情報は、Google社が提供するGoogleMapより物件の所在地に合わせて取得しております。そのため、表示されている施設情報および物件からの距離・移動時間などは実際と異なる場合があります。正確な情報は各分譲地にお問い合わせください。
ダイワハウス / 京都支店
京都府京都市伏見区竹田浄菩提院町316番地 定休日:火曜日・水曜日
お電話の際には「家選びネットを見た」とお問い合わせください。
- ※定休日などにより、お問い合わせのお返事にお時間をいただく場合がございます。
- ※お急ぎの方は上記の電話番号より直接ご連絡ください。

















