- 建売
- 建売
- ハウスメーカー
- 大和ハウス工業/ダイワハウス
- 沿線名/駅名
- 近鉄京都線「伊勢田」駅
- 総区画数
- 2 区画
- 駅・バス停からの最短時間
- 16分
- 価格帯
- 4,990万円-
5,090万円
- 土地面積
- 117.65㎡
- 所在地
- 京都府宇治市広野町新成田100番34他
- 沿線名/駅名
- 近鉄京都線「伊勢田」駅まで徒歩16分
近鉄京都線「大久保」駅まで徒歩18分
JR奈良線「新田」駅まで徒歩22分
- 価格帯
- 4,990万円~5,090万円
- 最多価格帯
- -
- 販売戸数/総戸数
- 2戸/2戸
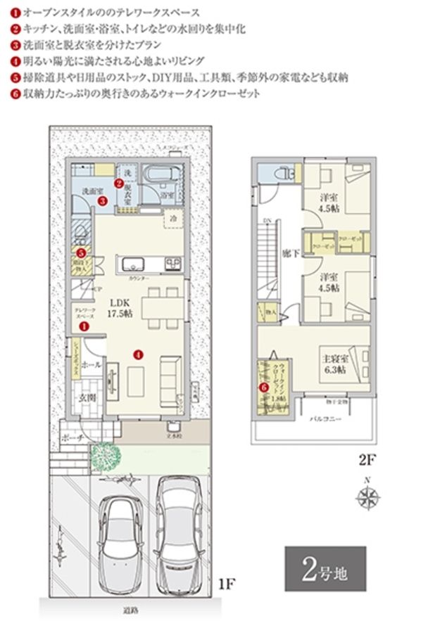
- 間取り
- 3LDK(1号地、2号地)
- 建物面積
- 93.90m2(1号地)、93.49m2(2号地)
- 土地面積
- 117.65m2(1号地)、117.65m2(2号地) 全て私道負担なし
この物件のこだわりポイント
南道路の区画
近鉄京都線「大久保」駅 近鉄京都線「伊勢田」駅Wアクセス可
太陽光発電システム搭載
- 物件構造
- 軽量鉄骨2階建(2戸)
- 用途地域
- 第一種低層住居専用地域
- 完成予定日
- 令和7年9月完成済 2戸
- 建築年月
- 令和7年9月完成済 2戸
- 販売時期
- 先着順申込受付中
- その他費用
-
- 引渡可能時期
- 即引渡可 2戸
- 売主
- 大和ハウス工業株式会社
- 販売会社名(取引態様)
- 売主
- 情報提供元
- 大和ハウス工業株式会社
- お問い合わせ先
京都支店 分譲店
- 開発許可または建築確認番号
- 第25WHEC確建京00307号他
- 宅建番号その他
大和ハウス工業株式会社 DAIWA HOUSE INDUSTRY CO., LTD.
本社 〒530-8241 大阪市北区梅田3丁目3-5 大和ハウス大阪ビル TEL:0120-590-956
建設業許可番号・国土交通大臣許可(特-2)第5279号
宅地建物取引業者免許番号・国土交通大臣(16)第245号
(一社)大阪府宅地建物取引業協会会員
(一社)不動産協会会員
(公社)近畿地区不動産公正取引協議会加盟
- 情報提供日
- 2025-12-17
- 次回更新予定日・取引有効期限
- 2025-12-24
京都府宇治市周辺マップ
- ※分譲地は地図中心の赤いピン付近に所在します。(実際の物件所在地から多少ずれることがあります)
- ※地図上に表示される物件・施設の情報はおおよその所在地を表すものであり、実際の所在地とは異なる場合がございます。
- ※周辺施設は、分譲地の所在地から半径3km以内の施設(大型施設は半径5km以内)のみを表示しています。
- 徒歩
- 電車
- この機能は準備中です。
- 車
- ※上記に表示されている地図・ルート検索・周辺施設情報は、Google社が提供するGoogleMapより物件の所在地に合わせて取得しております。そのため、表示されている施設情報および物件からの距離・移動時間などは実際と異なる場合があります。正確な情報は各分譲地にお問い合わせください。
ダイワハウス / 京都支店
京都府京都市伏見区竹田浄菩提院町316番地 定休日:火曜日・水曜日
お電話の際には「家選びネットを見た」とお問い合わせください。
- ※定休日などにより、お問い合わせのお返事にお時間をいただく場合がございます。
- ※お急ぎの方は上記の電話番号より直接ご連絡ください。


















