- 建売
- 建売
- ハウスメーカー
- 大和ハウス工業/ダイワハウス
- 所在地
- 沿線名/駅名
- 近鉄橿原線「田原本」駅
- 総区画数
- 7 区画
- 駅・バス停からの最短時間
- 14分
- 価格帯
- 4,930万円
- 土地面積
- 136.12㎡
- 所在地
- 奈良県磯城郡田原本町大字八尾564-8
- 沿線名/駅名
- 近鉄橿原線「田原本」駅まで徒歩14分
近鉄田原本線「西田原本」駅まで徒歩15分
- 価格帯
- 4,930万円
- 最多価格帯
- -
- 販売戸数/総戸数
- 1戸/7戸
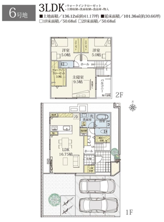
- 間取り
- 3LDK(6号地)
- 建物面積
- 101.36m2(6号地)
- 土地面積
- 136.12m2(6号地) 私道負担なし
この物件のこだわりポイント
駅までフラットアクセスで2駅2路線利用可能。
スーパーやコンビニが近い便利な立地です
開発分譲地内のスッキリとした街並。道路幅はゆとりの6m以上
- 物件構造
- 軽量鉄骨2階建(1戸)
- 用途地域
- 第一種中高層住居専用地域
- 完成予定日
- 令和7年11月完成済 1戸
- 建築年月
- 令和7年11月完成済 1戸
- 販売時期
- 先着順申込受付中
- その他費用
-
- 引渡可能時期
- 即引渡可 1戸
- 売主
- 大和ハウス工業株式会社
- 販売会社名(取引態様)
- 売主
- 情報提供元
- 大和ハウス工業株式会社
- お問い合わせ先
奈良支店 住宅営業所
- 開発許可または建築確認番号
- 第25確認建築財なら中0175号
- 宅建番号その他
大和ハウス工業株式会社 DAIWA HOUSE INDUSTRY CO., LTD.
本社 〒530-8241 大阪市北区梅田3丁目3-5 大和ハウス大阪ビル TEL:0120-590-956
建設業許可番号・国土交通大臣許可(特-2)第5279号
宅地建物取引業者免許番号・国土交通大臣(16)第245号
(一社)大阪府宅地建物取引業協会会員
(一社)不動産協会会員
(公社)近畿地区不動産公正取引協議会加盟
- 情報提供日
- 2026-01-31
- 次回更新予定日・取引有効期限
- 2026-02-07
【新生活応援キャンペーン 選べる50ポイント分 成約パッケージ概要】
【対象物件】大和ハウス工業株式会社の分譲住宅【申込条件】2026年1月5日から3月31日までに土地建物売買契約を締結していただける方。●2026年3月31日までにお引渡し可能な方が対象となります。【注意事項】注文住宅をご契約の方は対象外とさせていただきます。●ポイントの使用期限は、土地建物売買契約から30日以内となります。なお、使用期限を過ぎるとポイントは失効とさせていただきます。申し込みは1回限り。余ったポイントは使用することができません。●50ポイントは30万円(税込)相当●プレゼントのお渡し時期については分譲住宅のお引渡し後となります。●他のキャンペーン・割引制度との併用など、詳しくは担当者にお尋ねください。
奈良県磯城郡田原本町周辺マップ
- ※分譲地は地図中心の赤いピン付近に所在します。(実際の物件所在地から多少ずれることがあります)
- ※地図上に表示される物件・施設の情報はおおよその所在地を表すものであり、実際の所在地とは異なる場合がございます。
- ※周辺施設は、分譲地の所在地から半径3km以内の施設(大型施設は半径5km以内)のみを表示しています。
- 徒歩
- 電車
- この機能は準備中です。
- 車
- ※上記に表示されている地図・ルート検索・周辺施設情報は、Google社が提供するGoogleMapより物件の所在地に合わせて取得しております。そのため、表示されている施設情報および物件からの距離・移動時間などは実際と異なる場合があります。正確な情報は各分譲地にお問い合わせください。
ダイワハウス / 奈良支店
奈良県奈良市西大寺国見町一丁目4番1-1号 定休日:火曜日・水曜日
お電話の際には「家選びネットを見た」とお問い合わせください。
- ※定休日などにより、お問い合わせのお返事にお時間をいただく場合がございます。
- ※お急ぎの方は上記の電話番号より直接ご連絡ください。

























