- 建売
- 建売
- ハウスメーカー
- 大和ハウス工業/ダイワハウス
- 所在地
- 沿線名/駅名
- 近鉄橿原線「田原本」駅
- 総区画数
- 7 区画
- 駅・バス停からの最短時間
- 14分
- 価格帯
- 4,930万円
- 土地面積
- 136.12㎡
- 所在地
- 奈良県磯城郡田原本町大字八尾564-8
- 沿線名/駅名
- 近鉄橿原線「田原本」駅まで徒歩14分
近鉄田原本線「西田原本」駅まで徒歩15分
- 価格帯
- 4,930万円
- 最多価格帯
- -
- 販売戸数/総戸数
- 1戸/7戸
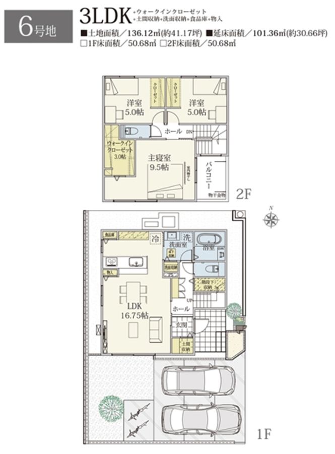
- 間取り
- 3LDK(6号地)
- 建物面積
- 101.36m2(6号地)
- 土地面積
- 136.12m2(6号地) 私道負担なし
この物件のこだわりポイント
駅までフラットアクセスで2駅2路線利用可能。
スーパーやコンビニが近い便利な立地です
開発分譲地内のスッキリとした街並。道路幅はゆとりの6m以上
- 物件構造
- 軽量鉄骨2階建(1戸)
- 用途地域
- 第一種中高層住居専用地域
- 完成予定日
- 令和7年11月完成済 1戸
- 建築年月
- 令和7年11月完成済 1戸
- 販売時期
- 先着順申込受付中
- その他費用
-
- 引渡可能時期
- 即引渡可 1戸
- 売主
- 大和ハウス工業株式会社
- 販売会社名(取引態様)
- 売主
- 情報提供元
- 大和ハウス工業株式会社
- お問い合わせ先
奈良支店 住宅営業所
- 開発許可または建築確認番号
- 第25確認建築財なら中0175号
- 宅建番号その他
大和ハウス工業株式会社 DAIWA HOUSE INDUSTRY CO., LTD.
本店 〒530-8241 大阪市北区梅田3丁目3-5 大和ハウス大阪ビル TEL:0120-590-956
建設業許可番号・国土交通大臣許可(特-7)第5279号
宅地建物取引業者免許番号・国土交通大臣(16)第245号
(一社)大阪府宅地建物取引業協会会員
(公社)近畿地区不動産公正取引協議会加盟
- 備考欄
(物件概要補足)●物件名称/セキュレア田原本八尾(分譲住宅)●所在地/奈良県磯城郡田原本町大字八尾564-8●総戸数/7戸●当社戸数/3戸●販売戸数/1戸●売主/大和ハウス工業株式会社●販売会社(取引態様)/売主●交通/近鉄橿原線「田原本」駅まで徒歩14分●建物面積/101.36m2(6号地)●土地面積および私道負担/136.12m2(6号地) 私道負担なし●構造および階数/軽量鉄骨2階建(1戸)●工事完了年月/令和7年11月完成済 1戸●引渡可能年月/即引渡可 1戸●販売価格(税込)/4,930万円●最多販売価格帯/-●その他の費用/-●間取り/3LDK(6号地)●主たる設備等の概要/電気:大和ハウス工業(他の小売電気事業者の選択も可能です)、ガス:オール電化の為なし、水道:市営水道、下水:公共下水道●道路の幅員/6.05m(アスファルト舗装)●建築確認番号/第25確認建築財なら中0175号●土地の権利形態/ 所有権●用途地域/都市計画 第一種中高層住居専用地域/市街化区域
- 情報提供日
- 2026-05-01
- 次回更新予定日・取引有効期限
- 2026-05-08
奈良県磯城郡田原本町周辺マップ
- ※分譲地は地図中心の赤いピン付近に所在します。(実際の物件所在地から多少ずれることがあります)
- ※地図上に表示される物件・施設の情報はおおよその所在地を表すものであり、実際の所在地とは異なる場合がございます。
- ※周辺施設は、分譲地の所在地から半径3km以内の施設(大型施設は半径5km以内)のみを表示しています。
- 徒歩
- 電車
- この機能は準備中です。
- 車
- ※上記に表示されている地図・ルート検索・周辺施設情報は、Google社が提供するGoogleMapより物件の所在地に合わせて取得しております。そのため、表示されている施設情報および物件からの距離・移動時間などは実際と異なる場合があります。正確な情報は各分譲地にお問い合わせください。
ダイワハウス / 奈良支店
奈良県奈良市西大寺国見町一丁目4番1-1号 定休日:火曜日・水曜日
お電話の際には「家選びネットを見た」とお問い合わせください。
- ※定休日などにより、お問い合わせのお返事にお時間をいただく場合がございます。
- ※お急ぎの方は上記の電話番号より直接ご連絡ください。





























