- 建売
- 建売
- ハウスメーカー
- 大和ハウス工業/ダイワハウス
- 沿線名/駅名
- JR常磐線「南柏」駅
- 総区画数
- 10 区画
- 駅・バス停からの最短時間
- 19分
- 価格帯
- 4,880万円-
5,490万円
- 土地面積
- 123.11㎡-
152.89㎡
- 所在地
- 千葉県柏市新富町二丁目459番44他
- 沿線名/駅名
- JR常磐線「南柏」駅まで徒歩19分
- 価格帯
- 4,880万円~5,490万円
- 最多価格帯
- 4,000万円台 2戸 ※1,000万円単位
- 販売戸数/総戸数
- 3戸/10戸
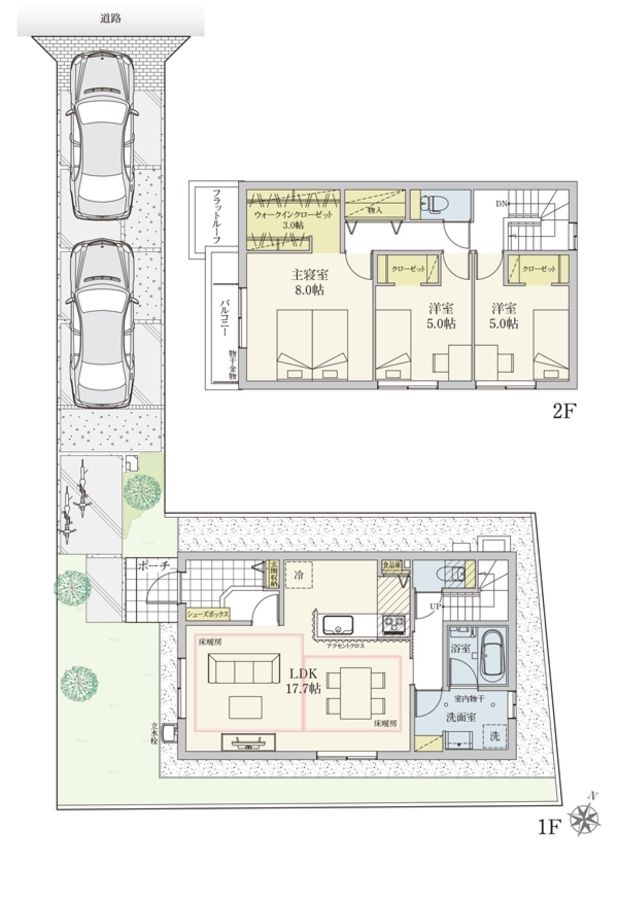
- 間取り
- 3LDK(5号地、8号地、9号地)
- 建物面積
- 98.04m2(5号地)、104.66m2(8号地)、103.84m2(9号地)
- 土地面積
- 123.11m2(5号地)、152.89m2(8号地)、145.05m2(9号地) 私道負担なし
この物件のこだわりポイント
JR常磐線「南柏」駅まで徒歩19分
家事が楽になる動線設計と太陽光発電を備えた、子育て世帯に嬉しい分譲住宅。
業界トップクラスを誇る30年の初期保証(構造耐力上主要な部分、雨水の浸入を防止する部分)。
- 物件構造
- 軽量鉄骨2階建(3戸)
- 用途地域
- 第一種低層住居専用地域
- 完成予定日
- 令和6年12月完成済 1戸、令和7年1月完成済 1戸、2月完成済 1戸
- 建築年月
- 令和6年12月完成済 1戸、令和7年1月完成済 1戸、2月完成済 1戸
- 販売時期
- 先着順申込受付中
- その他費用
-
- 引渡可能時期
- 即引渡可 3戸
- 売主
- 大和ハウス工業株式会社
- 販売会社名(取引態様)
- 売主
- 情報提供元
- 大和ハウス工業株式会社
- お問い合わせ先
柏支店 住宅営業所分譲課
- 開発許可または建築確認番号
- 第ERI-24025886号他
- 宅建番号その他
大和ハウス工業株式会社 DAIWA HOUSE INDUSTRY CO., LTD.
本店 〒530-8241 大阪市北区梅田3丁目3-5 大和ハウス大阪ビル TEL:0120-590-956
建設業許可番号・国土交通大臣許可(特-7)第5279号
宅地建物取引業者免許番号・国土交通大臣(16)第245号
(一社)大阪府宅地建物取引業協会会員
(公社)近畿地区不動産公正取引協議会加盟
- 備考欄
(物件概要補足)●物件名称/セキュレア柏新富町 (分譲住宅)●所在地/千葉県柏市新富町二丁目459番44他●総戸数/10戸●当社戸数/10戸●販売戸数/3戸●売主/大和ハウス工業株式会社●販売会社(取引態様)/売主●交通/JR常磐線「南柏」駅まで徒歩19分●建物面積/98.04m2(5号地)、104.66m2(8号地)、103.84m2(9号地)●土地面積および私道負担/123.11m2(5号地)、152.89m2(8号地)、145.05m2(9号地) 私道負担なし●構造および階数/軽量鉄骨2階建(3戸)●工事完了年月/令和6年12月完成済 1戸、令和7年1月完成済 1戸、2月完成済 1戸●引渡可能年月/即引渡可 3戸●販売価格(税込)/4,880万円~5,490万円●最多販売価格帯/4,000万円台 2戸 ※1,000万円単位●その他の費用/-●間取り/3LDK(5号地、8号地、9号地)●主たる設備等の概要/電気:大和ハウス工業(他の小売電気事業者の選択も可能です)、ガス:都市ガス、水道:公営水道、下水:公共下水道●道路の幅員/6m(アスファルト舗装)●建築確認番号/第ERI-24025886号他●土地の権利形態/ 所有権●用途地域/都市計画 第一種低層住居専用地域/市街化区域
●高さ制限:10m
- 情報提供日
- 2026-04-25
- 次回更新予定日・取引有効期限
- 2026-05-02
千葉県柏市周辺マップ
- ※分譲地は地図中心の赤いピン付近に所在します。(実際の物件所在地から多少ずれることがあります)
- ※地図上に表示される物件・施設の情報はおおよその所在地を表すものであり、実際の所在地とは異なる場合がございます。
- ※周辺施設は、分譲地の所在地から半径3km以内の施設(大型施設は半径5km以内)のみを表示しています。
- 徒歩
- 電車
- この機能は準備中です。
- 車
- ※上記に表示されている地図・ルート検索・周辺施設情報は、Google社が提供するGoogleMapより物件の所在地に合わせて取得しております。そのため、表示されている施設情報および物件からの距離・移動時間などは実際と異なる場合があります。正確な情報は各分譲地にお問い合わせください。
ダイワハウス / 柏支店
千葉県柏市柏260-4 定休日:火曜日・水曜日
お電話の際には「家選びネットを見た」とお問い合わせください。
- ※定休日などにより、お問い合わせのお返事にお時間をいただく場合がございます。
- ※お急ぎの方は上記の電話番号より直接ご連絡ください。




































