阪急彩都セントラルステージ(分譲住宅)
(分譲住宅)
マイレーティング
検討・比較をするためにこの物件を採点できます。
(採点した物件はお気に入りで確認できます)
国際文化公園都市「彩都」に建つ、プラスアルファの空間が嬉しい3LDKの住まい。
美しい景観と、空より広く感じさせる無電柱の街。
※開発区域外を除く
<プラン>
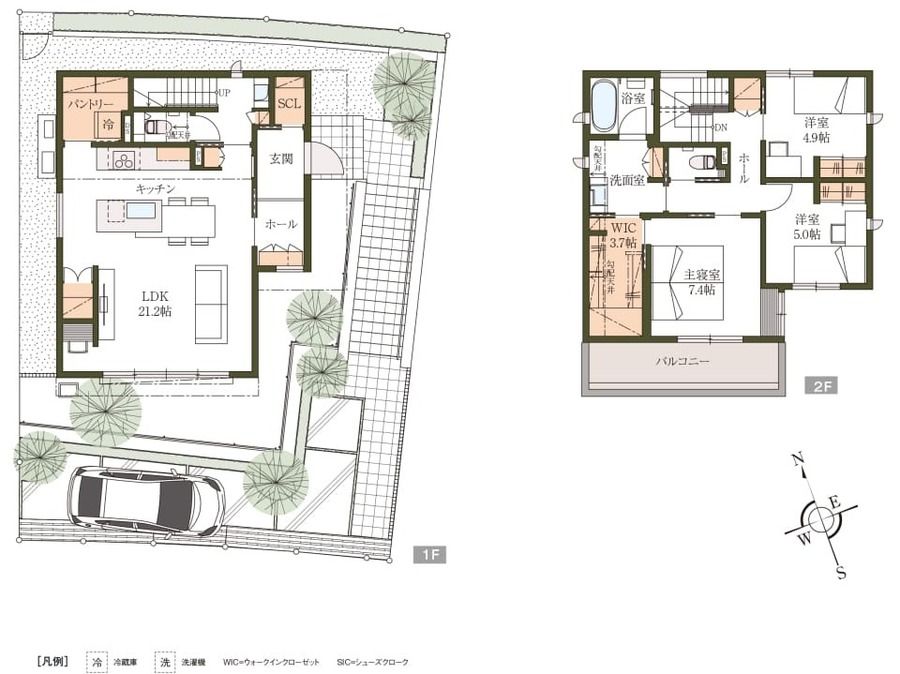
3LDK+パントリー+WIC+SCLの住まい。
食洗器、浴室暖房乾燥機はもちろん、太陽光発電や電動シャッター、玄関の電気錠などが標準で備わっています。
<アクセス>
大阪モノレール彩都線「彩都西」駅まで徒歩11分。座って通勤・通学がしやすい始発駅です。
「新大阪」駅へ乗車45分、「梅田」駅へは乗車52分でアクセスできます。
<周辺環境>
スーパーへ徒歩6分、ショッピングモールへ徒歩12分。
周辺には公園も点在し、のびのびと子育てできる環境です。
生活利便施設が揃いながらも豊かな自然を身近に感じる、穏やかな街並みが広がります。
<街並み>
丘陵地に位置する分譲地。景観協定のもと計画された、統一感のある美しい景観が広がります。
2方が接道しているため、開放的な空間で伸びやかな毎日を過ごすことができそうです。
幅員約16.0mの前面道路の両側には歩道が整備されています。
歩行者が通行する際の安全性に配慮されており、お子様がいるご家庭にも嬉しい環境です。
- 建売
- 建売
- ハウスメーカー
- 積水ハウス/セキスイハウス
- 沿線名/駅名
- 大阪モノレール彩都線「彩都西」駅
- 総区画数
- 2 区画
- 駅・バス停からの最短時間
- 11分
- 価格帯
- 7,980万円
- 土地面積
- 169.58㎡
- 所在地
- 大阪府茨木市彩都やまぶき3丁目8番91
- 沿線名/駅名
- 大阪モノレール彩都線「彩都西」駅まで徒歩11分(最長)
- 価格帯
- 7980万円(1戸)
- 販売戸数/総戸数
- 1戸/2戸
- 建物面積
- 116.67㎡
- 土地面積
- 169.58㎡ ●私道負担面積
- 物件構造
- 木造2階建(軸組工法)(1戸)
- 用途地域
- 第一種低層住居専用地域 第一種高度地区、彩都地区地区計画、景観計画区域(まちなみ景観区域)、屋外広告物規制区域(禁止区域)、景観協定、居住誘導地区、土地区画整理事業区域(国際文化公園都市特定土地区画整理事業)
- 建築年月
- 2024年4月 完成済(3-8)
- 引渡可能時期
- 即引き渡し可能(3-8)
- 売主
- 積水ハウス株式会社
- 販売会社名(取引態様)
- 積水ハウス株式会社
- 情報提供元
- 積水ハウス株式会社 大阪北支店
- お問い合わせ先
積水ハウス株式会社 大阪北支店(0120-43-0102)
- 宅建番号その他
積水ハウス株式会社
国土交通大臣(16)第540号
一般社団法人不動産協会会員、公益社団法人首都圏不動産公正取引協議会加盟
- 備考欄
道路幅員:6m~16m アスファルト舗装
主たる設備等の概要
●設備/電気:関西電力、ガス:都市ガス(大阪ガス)上下水道、汚水・雑排水:公共下水道、雨水:U字溝、L字溝その他の重要な事項
●総区画数/126区画(内、当社販売10区画)●総面積/34232㎡ ●良好なまちなみの形成を図るため、「まちなみガイドライン」を作成しています ●用途地域:「第一種高度地区、彩都地区地区計画、景観計画区域(まちなみ景観区域)、屋外広告物規制区域(禁止区域)、景観協定、居住誘導地区、土地区画整理事業区域(国際文化都市特定土地区画整理事業)」
- 情報提供日
- 2026-02-12
- 次回更新予定日・取引有効期限
- 2026-02-26
大阪府茨木市周辺マップ
- ※分譲地は地図中心の赤いピン付近に所在します。(実際の物件所在地から多少ずれることがあります)
- ※地図上に表示される物件・施設の情報はおおよその所在地を表すものであり、実際の所在地とは異なる場合がございます。
- ※周辺施設は、分譲地の所在地から半径3km以内の施設(大型施設は半径5km以内)のみを表示しています。
- 徒歩
- 電車
- この機能は準備中です。
- 車
- ※上記に表示されている地図・ルート検索・周辺施設情報は、Google社が提供するGoogleMapより物件の所在地に合わせて取得しております。そのため、表示されている施設情報および物件からの距離・移動時間などは実際と異なる場合があります。正確な情報は各分譲地にお問い合わせください。
積水ハウス / 大阪北支店
箕面市船場東1-10-33 定休日:火曜日・水曜日・祝日
お電話の際には「家選びネットを見た」とお問い合わせください。
- ※定休日などにより、お問い合わせのお返事にお時間をいただく場合がございます。
- ※お急ぎの方は上記の電話番号より直接ご連絡ください。



























