セキュレア川原町駅 (分譲住宅)
(分譲住宅)
マイレーティング
検討・比較をするためにこの物件を採点できます。
(採点した物件はお気に入りで確認できます)
近鉄名古屋線「川原町」駅まで徒歩5分圏内、近鉄名古屋線「近鉄四日市」駅まで徒歩15分圏内の便利な住環境で彩られる新たな暮らし。
本物件では太陽光発電システムを搭載しており、日中は発電した電力を中心に生活し、
光熱費の削減が期待できます。
【高耐震】×【高耐久】×【省エネ】で安心の暮らしを叶えるダイワハウスの分譲住宅。
それぞれ違った魅力をもつ間取り・レイアウトです。
ご家族に合う住まいを探してみてはいかがでしょうか?
夜間、短時間でのご見学&ご相談も受付中です。
- 建売
- 建売
- ハウスメーカー
- 大和ハウス工業/ダイワハウス
- 沿線名/駅名
- 近鉄名古屋線「川原町」駅
- 総区画数
- 9 区画
- 駅・バス停からの最短時間
- 3分
- 価格帯
- 4,690万円-
4,880万円
- 土地面積
- 153.61㎡-
222.21㎡
- 所在地
- 三重県四日市市滝川町178番10他
- 沿線名/駅名
- 近鉄名古屋線「川原町」駅まで徒歩3分
近鉄名古屋線「近鉄四日市」駅まで徒歩12分
- 価格帯
- 4,690万円~4,880万円
- 最多価格帯
- 4,000万円台 3戸 ※1,000万円単位
- 販売戸数/総戸数
- 3戸/9戸
- 間取り
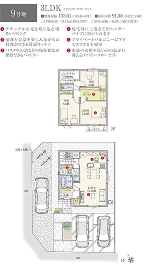
- 3LDK(2号地、9号地)、4LDK(3号地)
- 建物面積
- 104.33m2(2号地)、104.33m2(3号地)、91.08m2(9号地)
- 土地面積
- 157.76m2(2号地)、222.21m2(3号地)、153.61m2(9号地) 私道負担なし
この物件のこだわりポイント
近鉄名古屋線「近鉄四日市」駅まで徒歩15分圏内。
近鉄名古屋線「川原町」駅まで徒歩5分圏内。
太陽光発電システムを搭載しており、光熱費の削減が期待できます。
- 物件構造
- 木造2階建(3戸)
- 用途地域
- 準工業地域
- 完成予定日
- 令和7年2月完成済 1戸、11月完成済 2戸
- 建築年月
- 令和7年2月完成済 1戸、11月完成済 2戸
- 販売時期
- 先着順申込受付中
- 引渡可能時期
- 即引渡可 3戸
- 売主
- 大和ハウス工業株式会社
- 販売会社名(取引態様)
- 売主
- 情報提供元
- 大和ハウス工業株式会社
- お問い合わせ先
三重支店 住宅営業所 分譲課 定休日(火曜日・水曜日・祝日)
- 開発許可または建築確認番号
- 第25WHEC確建三00453号他
- 宅建番号その他
大和ハウス工業株式会社 DAIWA HOUSE INDUSTRY CO., LTD.
本社 〒530-8241 大阪市北区梅田3丁目3-5 大和ハウス大阪ビル TEL:0120-590-956
建設業許可番号・国土交通大臣許可(特-2)第5279号
宅地建物取引業者免許番号・国土交通大臣(16)第245号
(一社)大阪府宅地建物取引業協会会員
(一社)不動産協会会員
(公社)近畿地区不動産公正取引協議会加盟
- 情報提供日
- 2025-12-12
- 次回更新予定日・取引有効期限
- 2025-12-19
三重県四日市市周辺マップ
- ※分譲地は地図中心の赤いピン付近に所在します。(実際の物件所在地から多少ずれることがあります)
- ※地図上に表示される物件・施設の情報はおおよその所在地を表すものであり、実際の所在地とは異なる場合がございます。
- ※周辺施設は、分譲地の所在地から半径3km以内の施設(大型施設は半径5km以内)のみを表示しています。
- 徒歩
- 電車
- この機能は準備中です。
- 車
- ※上記に表示されている地図・ルート検索・周辺施設情報は、Google社が提供するGoogleMapより物件の所在地に合わせて取得しております。そのため、表示されている施設情報および物件からの距離・移動時間などは実際と異なる場合があります。正確な情報は各分譲地にお問い合わせください。
ダイワハウス / 三重支店
三重県四日市市ときわ1-7-14 定休日:火曜日・水曜日
お電話の際には「家選びネットを見た」とお問い合わせください。
- ※定休日などにより、お問い合わせのお返事にお時間をいただく場合がございます。
- ※お急ぎの方は上記の電話番号より直接ご連絡ください。
ハウスメーカー8社が販売している四日市市の物件
ハウスメーカー8社が販売している近隣エリアの物件
パークナードテラス鈴鹿・神戸【パナソニックホームズ】(建築条件付)
三重県鈴鹿市
近鉄鈴鹿線鈴鹿市駅より徒歩5分〜7分
1,381万円〜 71区画 徒歩5分






















































