セキュレア横濱荏田西4丁目 (分譲住宅)
(分譲住宅)
マイレーティング
検討・比較をするためにこの物件を採点できます。
(採点した物件はお気に入りで確認できます)
東急田園都市線「市が尾」駅まで徒歩13分。
都心へのスマートなアクセスはもちろん、田園都市線沿いの魅力あふれるさまざまな街へのアクセスも気軽です。
■東急田園都市線「市が尾」駅より「渋谷」駅へ 36分(東急田園都市線利用、「あざみ野」駅で急行に乗換え)
※所要時間は朝の通勤ラッシュ時のもので、時間帯によって異なります。乗り換え・待ち時間が含まれています。
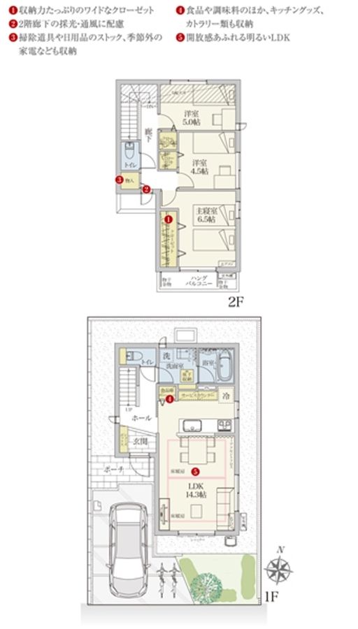
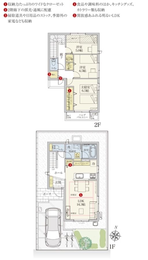
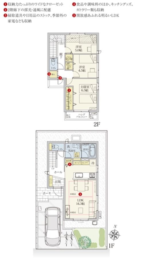
全棟それぞれ違った魅力をもつ間取り・レイアウトです。
ご家族に合う住まいを探してみてはいかがでしょうか?
- 建売
- 建売
- ハウスメーカー
- 大和ハウス工業/ダイワハウス
- 所在地
- 沿線名/駅名
- 東急田園都市線「市が尾」駅
- 総区画数
- 3 区画
- 駅・バス停からの最短時間
- 13分
- 価格帯
- 7,980万円
- 土地面積
- 108.84㎡-
125.16㎡
- 所在地
- 神奈川県横浜市青葉区荏田西4丁目14-9他
- 沿線名/駅名
- 東急田園都市線「市が尾」駅まで徒歩13分
- 価格帯
- 7,980万円
- 最多価格帯
- 7,900万円台 2戸
- 販売戸数/総戸数
- 2戸/3戸
- 間取り
- 3LDK(1号地、3号地)
- 建物面積
- 97.62m2(1号地)、86.28m2(3号地)
- 土地面積
- 125.16m2(1号地)、108.84m2(3号地) 全て私道負担なし
この物件のこだわりポイント
東急田園都市線「市が尾」駅まで徒歩圏内。周辺は利便性が良いです。
南方向に公園があり開放感があります。
閑静な住宅街で緑の多い環境です。
- 物件構造
- 軽量鉄骨2階建(2戸)
- 用途地域
- 第一種低層住居専用地域
- 完成予定日
- 令和6年12月完成済 2戸
- 建築年月
- 令和6年12月完成済 2戸
- 販売時期
- 先着順申込受付中
- その他費用
-
- 引渡可能時期
- 即引渡可 2戸
- 売主
- 大和ハウス工業株式会社
- 販売会社名(取引態様)
- 売主
- 情報提供元
- 大和ハウス工業株式会社
- お問い合わせ先
川崎支店 分譲課
- 開発許可または建築確認番号
- 第ERI-24021266号他
- 宅建番号その他
大和ハウス工業株式会社 DAIWA HOUSE INDUSTRY CO., LTD.
本店 〒530-8241 大阪市北区梅田3丁目3-5 大和ハウス大阪ビル TEL:0120-590-956
建設業許可番号・国土交通大臣許可(特-7)第5279号
宅地建物取引業者免許番号・国土交通大臣(16)第245号
(一社)大阪府宅地建物取引業協会会員
(公社)近畿地区不動産公正取引協議会加盟
- 備考欄
(物件概要補足)●物件名称/セキュレア横濱荏田西4丁目 (分譲住宅)●所在地/神奈川県横浜市青葉区荏田西4丁目14-9他●総戸数/3戸●当社戸数/3戸●販売戸数/2戸●売主/大和ハウス工業株式会社●販売会社(取引態様)/売主●交通/東急田園都市線「市が尾」駅まで徒歩13分●建物面積/97.62m2(1号地)、86.28m2(3号地)●土地面積および私道負担/125.16m2(1号地)、108.84m2(3号地) 全て私道負担なし●構造および階数/軽量鉄骨2階建(2戸)●工事完了年月/令和6年12月完成済 2戸●引渡可能年月/即引渡可 2戸●販売価格(税込)/7,980万円●最多販売価格帯/7,900万円台 2戸●その他の費用/-●間取り/3LDK(1号地、3号地)●主たる設備等の概要/電気:大和ハウス工業(他の小売電気事業者の選択も可能です)、ガス:都市ガス、水道:公営水道、下水:公共下水道●道路の幅員/6.5m(アスファルト舗装)●建築確認番号/第ERI-24021266号他●土地の権利形態/ 所有権●用途地域/都市計画 第一種低層住居専用地域/市街化区域
- 情報提供日
- 2026-04-25
- 次回更新予定日・取引有効期限
- 2026-05-02
神奈川県横浜市青葉区周辺マップ
- ※分譲地は地図中心の赤いピン付近に所在します。(実際の物件所在地から多少ずれることがあります)
- ※地図上に表示される物件・施設の情報はおおよその所在地を表すものであり、実際の所在地とは異なる場合がございます。
- ※周辺施設は、分譲地の所在地から半径3km以内の施設(大型施設は半径5km以内)のみを表示しています。
- 徒歩
- 電車
- この機能は準備中です。
- 車
- ※上記に表示されている地図・ルート検索・周辺施設情報は、Google社が提供するGoogleMapより物件の所在地に合わせて取得しております。そのため、表示されている施設情報および物件からの距離・移動時間などは実際と異なる場合があります。正確な情報は各分譲地にお問い合わせください。
ダイワハウス / 川崎支店
神奈川県川崎市幸区新川崎7-7 産学交流・研究開発施設(AIRBIC) 5階 定休日:火曜日・水曜日
お電話の際には「家選びネットを見た」とお問い合わせください。
- ※定休日などにより、お問い合わせのお返事にお時間をいただく場合がございます。
- ※お急ぎの方は上記の電話番号より直接ご連絡ください。
































