セキュレア駿河区南八幡町II (分譲住宅)
(分譲住宅)
マイレーティング
検討・比較をするためにこの物件を採点できます。
(採点した物件はお気に入りで確認できます)
南部小学校まで徒歩3分圏内。
周辺にスーパー・公園・図書館・区役所・教育施設などが揃った、子育てに便利な立地にある分譲地です。
2026年3月にオープンした「イオンセントラルスクエア静岡」まで徒歩圏内。
車での利便としては東名高速道路「静岡インターチェンジ」まで車で約8分、「日本平久能山スマートインターチェンジ」まで車で約9分。
1|家族がのびやかに暮らせる、開放感のある住まい。
1階天井高2m72cmのLDKが生む開放感。
家族が集う時間がもっと心地よくなる、ゆとりの住まい。
2|暮らしを整える収納力。
来客時にすっきり迎えられる、収納を備えた玄関。
大容量のウォークインクローゼットが、生活に余白をつくる空間設計。
3|毎日の暮らしに嬉しい利便環境。
周辺施設が揃う利便性も加わり、家族の毎日が軽やかに動き出す住まいです。
- 建売
- 建売
- ハウスメーカー
- 大和ハウス工業/ダイワハウス
- 沿線名/駅名
- JR東海道本線「静岡」駅
- 総区画数
- 12 区画
- 駅・バス停からの最短時間
- 8分
- 価格帯
- 6,390万円-
6,590万円
- 土地面積
- 123.43㎡-
124.55㎡
- 所在地
- 静岡県静岡市駿河区南八幡町402番11他
- 沿線名/駅名
- JR東海道本線「静岡」駅 静鉄バス「石田街道線」約7分乗車「石田3丁目」バス停徒歩8分
静岡鉄道静岡清水線「新静岡」駅 静鉄バス「石田街道線」約7分乗車 「中田3丁目」バス停徒歩8分
- 価格帯
- 6,390万円~6,590万円
- 最多価格帯
- 6,000万円台 2戸 ※1,000万円単位
- 販売戸数/総戸数
- 2戸/12戸
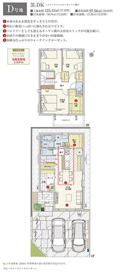
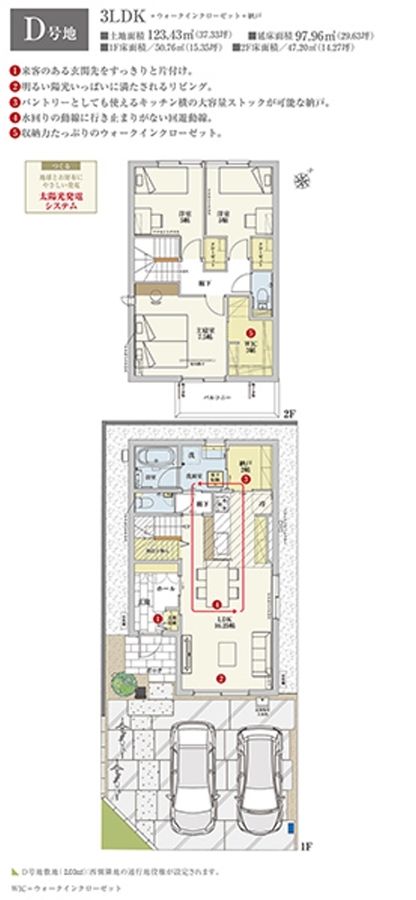
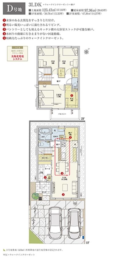
- 間取り
- 3LDK(D号地、H号地)
- 建物面積
- 97.96m2(D号地)、101.63m2(H号地)
- 土地面積
- 123.43m2 私道負担あり 77m2のうち、6分の1の負担持分(D号地)、124.55m2 私道負担なし(H号地)
この物件のこだわりポイント
南部小学校まで徒歩3分圏内。全12区画の閑静な住宅街です。
スーパー、ドラッグストア、公園、図書館、区役所が徒歩圏内に揃っています。
「イオンセントラルスクエア静岡」まで徒歩圏内。
- 物件構造
- 軽量鉄骨2階建(2戸)
- 用途地域
- 第一種中高層住居専用地域
- 完成予定日
- 令和7年12月完成済 2戸
- 建築年月
- 令和7年12月完成済 2戸
- 販売時期
- 先着順申込受付中
- その他費用
-
- 引渡可能時期
- 即引渡可 2戸
- 売主
- 大和ハウス工業株式会社
- 販売会社名(取引態様)
- 売主
- 情報提供元
- 大和ハウス工業株式会社
- お問い合わせ先
静岡支店(担当:田巻)
- 開発許可または建築確認番号
- 第ERI-25023563号他
- 宅建番号その他
大和ハウス工業株式会社 DAIWA HOUSE INDUSTRY CO., LTD.
本店 〒530-8241 大阪市北区梅田3丁目3-5 大和ハウス大阪ビル TEL:0120-590-956
建設業許可番号・国土交通大臣許可(特-7)第5279号
宅地建物取引業者免許番号・国土交通大臣(16)第245号
(一社)大阪府宅地建物取引業協会会員
(公社)近畿地区不動産公正取引協議会加盟
- 備考欄
(物件概要補足)●物件名称/セキュレア駿河区南八幡町II (分譲住宅)●所在地/静岡県静岡市駿河区南八幡町402番11他●総戸数/12戸●当社戸数/8戸●販売戸数/2戸●売主/大和ハウス工業株式会社●販売会社(取引態様)/売主●交通/JR東海道本線「静岡」駅 静鉄バス「石田街道線」約7分乗車「石田3丁目」バス停徒歩8分●建物面積/97.96m2(D号地)、101.63m2(H号地)●土地面積および私道負担/123.43m2 私道負担あり 77m2のうち、6分の1の負担持分(D号地)、124.55m2 私道負担なし(H号地)●構造および階数/軽量鉄骨2階建(2戸)●工事完了年月/令和7年12月完成済 2戸●引渡可能年月/即引渡可 2戸●販売価格(税込)/6,390万円~6,590万円●最多販売価格帯/6,000万円台 2戸 ※1,000万円単位●その他の費用/-●間取り/3LDK(D号地、H号地)●主たる設備等の概要/電気:大和ハウス工業(他の小売電気事業者の選択も可能です)、ガス:都市ガス、水道:市営水道、下水:公共下水道●道路の幅員/4m(アスファルト舗装)●建築確認番号/第ERI-25023563号他●土地の権利形態/ 所有権●用途地域/都市計画 第一種中高層住居専用地域/市街化区域
●※d号地の敷地面積123.43m2のうち、2.00m2には西側隣地の通行地役権が設定されます。
- 情報提供日
- 2026-04-25
- 次回更新予定日・取引有効期限
- 2026-05-02
静岡県静岡市駿河区周辺マップ
- ※分譲地は地図中心の赤いピン付近に所在します。(実際の物件所在地から多少ずれることがあります)
- ※地図上に表示される物件・施設の情報はおおよその所在地を表すものであり、実際の所在地とは異なる場合がございます。
- ※周辺施設は、分譲地の所在地から半径3km以内の施設(大型施設は半径5km以内)のみを表示しています。
- 徒歩
- 電車
- この機能は準備中です。
- 車
- ※上記に表示されている地図・ルート検索・周辺施設情報は、Google社が提供するGoogleMapより物件の所在地に合わせて取得しております。そのため、表示されている施設情報および物件からの距離・移動時間などは実際と異なる場合があります。正確な情報は各分譲地にお問い合わせください。
ダイワハウス / 静岡支店
静岡県静岡市駿河区石田1-3-29 定休日:火曜日・水曜日
お電話の際には「家選びネットを見た」とお問い合わせください。
- ※定休日などにより、お問い合わせのお返事にお時間をいただく場合がございます。
- ※お急ぎの方は上記の電話番号より直接ご連絡ください。













































