セキュレア光が丘Sta. (分譲住宅)
(分譲住宅)
マイレーティング
検討・比較をするためにこの物件を採点できます。
(採点した物件はお気に入りで確認できます)
~清新な街並みが広がる光が丘エリア。全19区画の大型分譲地~
都営大江戸線「光が丘」駅まで徒歩圏内。
通勤・通学に便利なアクセスが魅力。
「新宿」や「池袋」など、都心へのアクセスもスムーズです。
教育施設も充実しており、区立北原小学校や区立谷原中学校が徒歩圏内。
周辺には自然豊かな公園もあり、子育て世帯に嬉しい住環境。
駅直結の光が丘IMAや、スーパーなどのお買い物施設が徒歩圏内に揃う生活利便性も魅力です。
高耐震・高断熱の本邸は長期優良住宅認定対象物件。
光と風を効率よく取り込む機能的な空間設計。
太陽光発電システム、エコワンを搭載し、経済的でエネルギー効率の良い住まいです。
エコワンは水廻りを清潔に保ちながら、お肌にも良いウルトラファインバブル搭載型。
第一種低層住居専用地域に位置し、住環境が守られ、高層建築の建設はありません。
利便性と緑豊かな住環境の両方を享受するこの分譲地で新生活を始めませんか?
- 建売
- 建売
- ハウスメーカー
- 大和ハウス工業/ダイワハウス
- 沿線名/駅名
- 都営大江戸線「光が丘」駅
- 総区画数
- 19 区画
- 駅・バス停からの最短時間
- 16分
- 価格帯
- 8,990万円-
9,480万円
- 土地面積
- 100.01㎡-
111.04㎡
- 所在地
- 東京都練馬区高松6丁目4529-9他
- 沿線名/駅名
- 都営大江戸線「光が丘」駅まで徒歩16分~17分
- 価格帯
- 8,990万円~9,480万円
- 最多価格帯
- 8,900万円台 2戸
- 販売戸数/総戸数
- 4戸/19戸
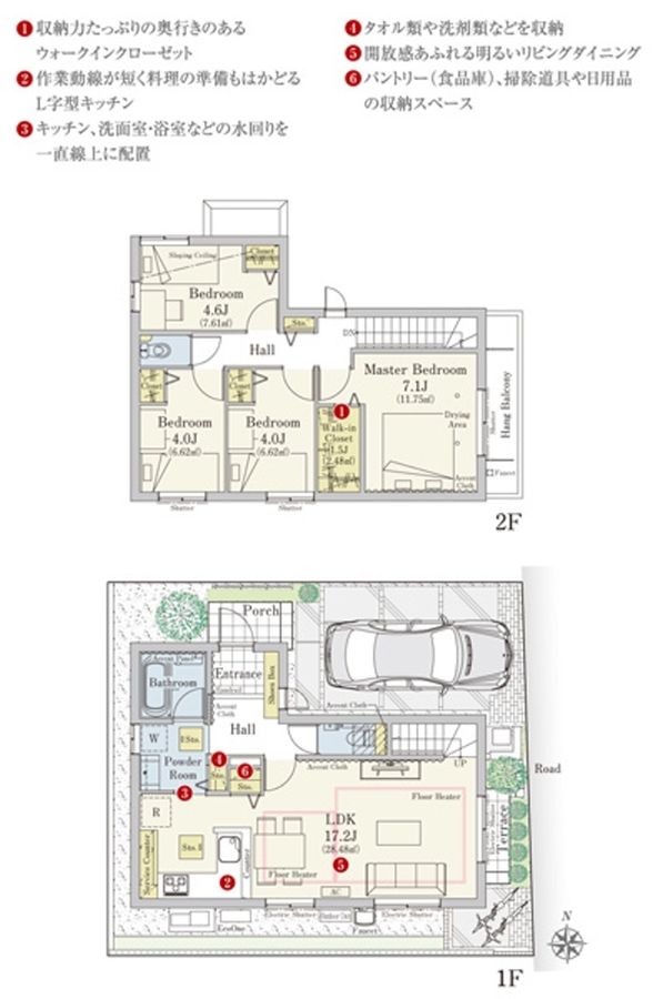
- 間取り
- 4LDK(2号地、13号地、18号地、19号地)
- 建物面積
- 97.38m2(2号地)、97.22m2(13号地)、99.25m2(18号地)、104.02m2(19号地)
- 土地面積
- 100.06m2 私道負担あり 29.81m2のうち、10分の1の負担持分(2号地)、100.01m2 私道負担なし(13号地)、101.01m2 私道負担なし(18号地)、111.04m2 私道負担なし(19号地)
この物件のこだわりポイント
都営大江戸線「光が丘」駅まで徒歩圏内 全19区画の大型分譲地!
緑豊かで落ち着いた住環境でありながら、利便性の良い立地
先進の省エネ設備搭載。永く快適に暮らせる長期優良住宅認定対象物件
- 物件構造
- 軽量鉄骨2階建(4戸)
- 用途地域
- 第一種低層住居専用地域
- 完成予定日
- 令和7年3月完成済 3戸、8月完成済 1戸
- 建築年月
- 令和7年3月完成済 3戸、8月完成済 1戸
- 販売時期
- 先着順申込受付中
- 引渡可能時期
- 即引渡可 4戸
- 売主
- 大和ハウス工業株式会社
- 販売会社名(取引態様)
- 売主
- 情報提供元
- 大和ハウス工業株式会社
- お問い合わせ先
東京本店 住宅事業部
- 開発許可または建築確認番号
- 第ERI-25009123号他
- 宅建番号その他
大和ハウス工業株式会社 DAIWA HOUSE INDUSTRY CO., LTD.
本社 〒530-8241 大阪市北区梅田3丁目3-5 大和ハウス大阪ビル TEL:0120-590-956
建設業許可番号・国土交通大臣許可(特-2)第5279号
宅地建物取引業者免許番号・国土交通大臣(16)第245号
(一社)大阪府宅地建物取引業協会会員
(一社)不動産協会会員
(公社)近畿地区不動産公正取引協議会加盟
- 備考欄
【お詫びと訂正】
令和7年12月1日まで公開していたホームページの周辺施設において
はなさき保育園、高松幼稚園、光が丘IMA、オーケー土支田店、新鮮市場 フレッツ、アコレ練馬高松店、ジェーソン練馬高松店、ウエルシア練馬高松店、セブンイレブン練馬谷原6丁目店、練馬高松郵便局、高松地区区民館、区立総合体育館、光が丘体育館、光が丘ドーム、三原台温水プール、光が丘美術館の写真に誤りがありました。
お詫びと共に訂正いたします。
-------------------------------------
■19号地延床面積104.02m2には宅配BOX部分0.18m2が含まれます。
■13・18・19号地について、ゴミ置場2.42m2のうち、各区画9分の1ずつの共有持分があります。
■2号地について、ゴミ置場2.84m2のうち、各区画10分の1ずつの共有持分があります。
■準防火地域
- 情報提供日
- 2025-12-04
- 次回更新予定日・取引有効期限
- 2025-12-11
東京都練馬区周辺マップ
- ※分譲地は地図中心の赤いピン付近に所在します。(実際の物件所在地から多少ずれることがあります)
- ※地図上に表示される物件・施設の情報はおおよその所在地を表すものであり、実際の所在地とは異なる場合がございます。
- ※周辺施設は、分譲地の所在地から半径3km以内の施設(大型施設は半径5km以内)のみを表示しています。
- 徒歩
- 電車
- この機能は準備中です。
- 車
- ※上記に表示されている地図・ルート検索・周辺施設情報は、Google社が提供するGoogleMapより物件の所在地に合わせて取得しております。そのため、表示されている施設情報および物件からの距離・移動時間などは実際と異なる場合があります。正確な情報は各分譲地にお問い合わせください。
ダイワハウス / 東京本店
東京都千代田区飯田橋3-13-1 定休日:火曜日・水曜日
お電話の際には「家選びネットを見た」とお問い合わせください。
- ※定休日などにより、お問い合わせのお返事にお時間をいただく場合がございます。
- ※お急ぎの方は上記の電話番号より直接ご連絡ください。






























