セキュレア国立西 (分譲住宅)
(分譲住宅)
マイレーティング
検討・比較をするためにこの物件を採点できます。
(採点した物件はお気に入りで確認できます)
〜文教エリア「国立」で始める、心安らぐ暮らし〜
JR中央本線まで徒歩15分の便利なロケーション。
徒歩圏内に、保育園や幼稚園、小・中学校から大学まで多くの教育施設が揃う文教エリア。
周辺にはスーパーや医療機関が充実、生活利便性の高さも魅力のひとつです。
角地に位置し、明るい陽光に包まれ開放感がある立地。
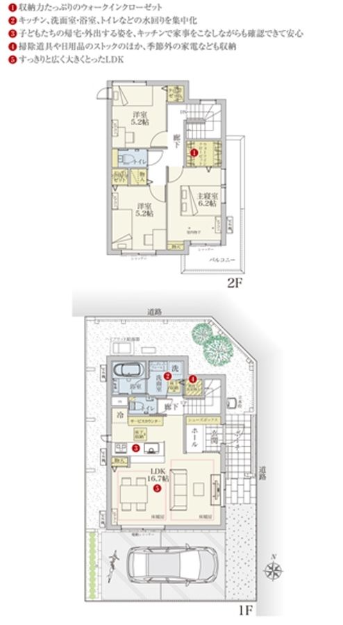
収納力たっぷりのウォークインクローゼットや床下収納など、適材適所の収納が暮らしを整えます。
太陽光発電システムやリチウムイオン蓄電池などを搭載し、環境への配慮と経済性を両立しながら、
耐震性・耐久性にも優れた災害にも備えられる安心の住まいを実現。
季節問わず快適な暮らしを提供できるよう、床暖房(LD)や浴室暖房換気乾燥機、ハイブリッド給湯器を採用。
ダイワハウスのこだわりが詰まったプランを、ぜひ現地でご覧ください。
資料請求、ご来場予約受付中です。
- 所在地
- 東京都国立市西1丁目7番40
- 沿線名/駅名
- JR中央本線「国立」駅まで徒歩15分
JR南武線「西国立」駅まで徒歩16分
JR中央本線「立川」駅 立川バス約16分「国立西二丁目」バス停徒歩5分
- 価格帯
- 9,290万円
- 最多価格帯
- -
- 販売戸数/総戸数
- 1戸/2戸
- 間取り
- 3LDK(1号地)
- 建物面積
- 91.10m2(1号地)
- 土地面積
- 107.38m2(1号地) 私道負担なし
この物件のこだわりポイント
JR中央線「国立」駅、JR南武線「西国立」駅2路線利用可能な立地。
教育施設や商業施設が徒歩圏内に揃いながらも落ち着きのある文教地区。
太陽光発電システム、リチウムイオン蓄電池、床暖房(LD)など充実の設備。
- 物件構造
- 軽量鉄骨2階建(1戸)
- 用途地域
- 第二種中高層住居専用地域
- 完成予定日
- 令和6年12月完成済 1戸
- 建築年月
- 令和6年12月完成済 1戸
- 販売時期
- 先着順申込受付中
- その他費用
-
- 引渡可能時期
- 即引渡可 1戸
- 売主
- 大和ハウス工業株式会社
- 販売会社名(取引態様)
- 売主
- 情報提供元
- 大和ハウス工業株式会社
- お問い合わせ先
東京西支店 東京西第2住宅営業所
- 開発許可または建築確認番号
- 第ERI-24024197号
- 宅建番号その他
大和ハウス工業株式会社 DAIWA HOUSE INDUSTRY CO., LTD.
本社 〒530-8241 大阪市北区梅田3丁目3-5 大和ハウス大阪ビル TEL:0120-590-956
建設業許可番号・国土交通大臣許可(特-2)第5279号
宅地建物取引業者免許番号・国土交通大臣(16)第245号
(一社)大阪府宅地建物取引業協会会員
(一社)不動産協会会員
(公社)近畿地区不動産公正取引協議会加盟
- 情報提供日
- 2026-01-24
- 次回更新予定日・取引有効期限
- 2026-01-31
【新生活応援キャンペーン 選べる50ポイント分 成約パッケージ概要】
【対象物件】大和ハウス工業株式会社の分譲住宅【申込条件】2026年1月5日から3月31日までに土地建物売買契約を締結していただける方。●2026年3月31日までにお引渡し可能な方が対象となります。【注意事項】注文住宅をご契約の方は対象外とさせていただきます。●ポイントの使用期限は、土地建物売買契約から30日以内となります。なお、使用期限を過ぎるとポイントは失効とさせていただきます。申し込みは1回限り。余ったポイントは使用することができません。●50ポイントは30万円(税込)相当●プレゼントのお渡し時期については分譲住宅のお引渡し後となります。●他のキャンペーン・割引制度との併用など、詳しくは担当者にお尋ねください。
東京都国立市周辺マップ
- ※分譲地は地図中心の赤いピン付近に所在します。(実際の物件所在地から多少ずれることがあります)
- ※地図上に表示される物件・施設の情報はおおよその所在地を表すものであり、実際の所在地とは異なる場合がございます。
- ※周辺施設は、分譲地の所在地から半径3km以内の施設(大型施設は半径5km以内)のみを表示しています。
- 徒歩
- 電車
- この機能は準備中です。
- 車
- ※上記に表示されている地図・ルート検索・周辺施設情報は、Google社が提供するGoogleMapより物件の所在地に合わせて取得しております。そのため、表示されている施設情報および物件からの距離・移動時間などは実際と異なる場合があります。正確な情報は各分譲地にお問い合わせください。
ダイワハウス / 東京西支店
東京西第2住宅営業所:東京都小金井市緑町2丁目1-34、東京西第3住宅営業所:東京都八王子市南大沢1丁目8-2 定休日:火・水曜日
お電話の際には「家選びネットを見た」とお問い合わせください。
- ※定休日などにより、お問い合わせのお返事にお時間をいただく場合がございます。
- ※お急ぎの方は上記の電話番号より直接ご連絡ください。
ダイワハウス(東京西支店)が販売している物件
セキュレア三鷹上連雀 The brilliance North(分譲住宅)
東京都三鷹市
JR中央本線、西武鉄道多摩川線「武蔵境」駅まで約2,140m~2,180m
8,790万円〜 徒歩ー分 15区画
セキュレア立川柏町 Bright Street(建築条件付宅地分譲)
東京都立川市
多摩モノレール「砂川七番」駅まで徒歩10分~11分
3,580万円〜 徒歩10分 39区画
セキュレア多摩センター CENTRAL HILLS(分譲住宅)
東京都多摩市
京王電鉄相模原線「京王多摩センター」駅まで徒歩13分
6,990万円〜 徒歩13分 3区画
大手ハウスメーカーのおすすめ物件
ハウスメーカー8社が販売している国立市の物件
ハウスメーカー8社が販売している近隣エリアの物件
【Panasonic Homes】パークナードテラス西国分寺Ⅱ
東京都国分寺市
JR中央線・武蔵野線「西国分寺」駅 徒歩13分~14分
未定 9区画 徒歩13分






































