- 所在地
- 東京都日野市万願寺三丁目9番7他
- 沿線名/駅名
- 多摩モノレール「万願寺」駅まで徒歩8分
- 価格帯
- 未定
- 最多価格帯
- 未定
- 販売戸数/総戸数
- 2戸/2戸
- 間取り
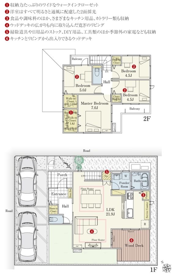
- 4LDK(A号地、B号地)
- 建物面積
- 103.04m2(A号地)、102.26m2(B号地)
- 土地面積
- 138.00m2(A号地)、138.00m2(B号地) 全て私道負担なし
この物件のこだわりポイント
多摩モノレール「万願寺」駅徒歩8分。フラットアプローチ。
「万願寺」駅から「立川南」駅まで6分、「立川南」駅よりJR中央本線「立川」駅まで徒歩3分※朝の通勤時
保育園、幼稚園、公園も徒歩圏内で、子育て世帯に嬉しい立地
- 予告広告
- この物件は予告広告です。販売開始までは、契約または予約の申込み・申込み順位の確保はできません。詳しい情報は「資料請求」にてご確認ください。
- 物件構造
- 木造2階建(2戸)
- 用途地域
- 第一種低層住居専用地域
- 完成予定日
- 令和8年2月予定 1戸、3月予定 1戸
- 建築年月
- 令和8年2月予定 1戸、3月予定 1戸
- 販売時期
- 令和8年2月中旬予定
- その他費用
-
- 引渡可能時期
- 令和8年3月予定 2戸
- 売主
- 大和ハウス工業株式会社
- 販売会社名(取引態様)
- 売主
- 情報提供元
- 大和ハウス工業株式会社
- お問い合わせ先
東京西支店 東京西第3住宅営業所
- 開発許可または建築確認番号
- 第トラストT25-0222号(令和7年10月22日)他
- 宅建番号その他
大和ハウス工業株式会社 DAIWA HOUSE INDUSTRY CO., LTD.
本社 〒530-8241 大阪市北区梅田3丁目3-5 大和ハウス大阪ビル TEL:0120-590-956
建設業許可番号・国土交通大臣許可(特-2)第5279号
宅地建物取引業者免許番号・国土交通大臣(16)第245号
(一社)大阪府宅地建物取引業協会会員
(一社)不動産協会会員
(公社)近畿地区不動産公正取引協議会加盟
- 情報提供日
- 2026-01-20
- 次回更新予定日・取引有効期限
- 2026-01-27
【新生活応援キャンペーン 選べる50ポイント分 成約パッケージ概要】
【対象物件】大和ハウス工業株式会社の分譲住宅【申込条件】2026年1月5日から3月31日までに土地建物売買契約を締結していただける方。●2026年3月31日までにお引渡し可能な方が対象となります。【注意事項】注文住宅をご契約の方は対象外とさせていただきます。●ポイントの使用期限は、土地建物売買契約から30日以内となります。なお、使用期限を過ぎるとポイントは失効とさせていただきます。申し込みは1回限り。余ったポイントは使用することができません。●50ポイントは30万円(税込)相当●プレゼントのお渡し時期については分譲住宅のお引渡し後となります。●他のキャンペーン・割引制度との併用など、詳しくは担当者にお尋ねください。
東京都日野市周辺マップ
- ※分譲地は地図中心の赤いピン付近に所在します。(実際の物件所在地から多少ずれることがあります)
- ※地図上に表示される物件・施設の情報はおおよその所在地を表すものであり、実際の所在地とは異なる場合がございます。
- ※周辺施設は、分譲地の所在地から半径3km以内の施設(大型施設は半径5km以内)のみを表示しています。
- 徒歩
- 電車
- この機能は準備中です。
- 車
- ※上記に表示されている地図・ルート検索・周辺施設情報は、Google社が提供するGoogleMapより物件の所在地に合わせて取得しております。そのため、表示されている施設情報および物件からの距離・移動時間などは実際と異なる場合があります。正確な情報は各分譲地にお問い合わせください。
ダイワハウス / 東京西支店
東京西第2住宅営業所:東京都小金井市緑町2丁目1-34、東京西第3住宅営業所:東京都八王子市南大沢1丁目8-2 定休日:火・水曜日
お電話の際には「家選びネットを見た」とお問い合わせください。
- ※定休日などにより、お問い合わせのお返事にお時間をいただく場合がございます。
- ※お急ぎの方は上記の電話番号より直接ご連絡ください。
ダイワハウス(東京西支店)が販売している物件
セキュレア三鷹上連雀 The brilliance North(分譲住宅)
東京都三鷹市
JR中央本線、西武鉄道多摩川線「武蔵境」駅まで約2,140m~2,180m
8,790万円〜 徒歩ー分 15区画
セキュレア立川柏町 Bright Street(建築条件付宅地分譲)
東京都立川市
多摩モノレール「砂川七番」駅まで徒歩10分~11分
3,580万円〜 徒歩10分 39区画
セキュレア多摩センター CENTRAL HILLS(分譲住宅)
東京都多摩市
京王電鉄相模原線「京王多摩センター」駅まで徒歩13分
7,490万円〜 徒歩13分 3区画
大手ハウスメーカーのおすすめ物件
ハウスメーカー8社が販売している日野市の物件
ハウスメーカー8社が販売している近隣エリアの物件
セキュレア多摩センター CENTRAL HILLS(分譲住宅)
東京都多摩市
京王電鉄相模原線「京王多摩センター」駅まで徒歩13分
7,490万円〜 3区画 徒歩13分








































