コモンステージ武蔵村山大南(分譲住宅)
(分譲住宅)
マイレーティング
検討・比較をするためにこの物件を採点できます。
(採点した物件はお気に入りで確認できます)
効率的な家事動線で、共働き世帯にもおすすめの住まい。
使い勝手の良い収納や設備仕様を、ぜひ現地でご確認ください。
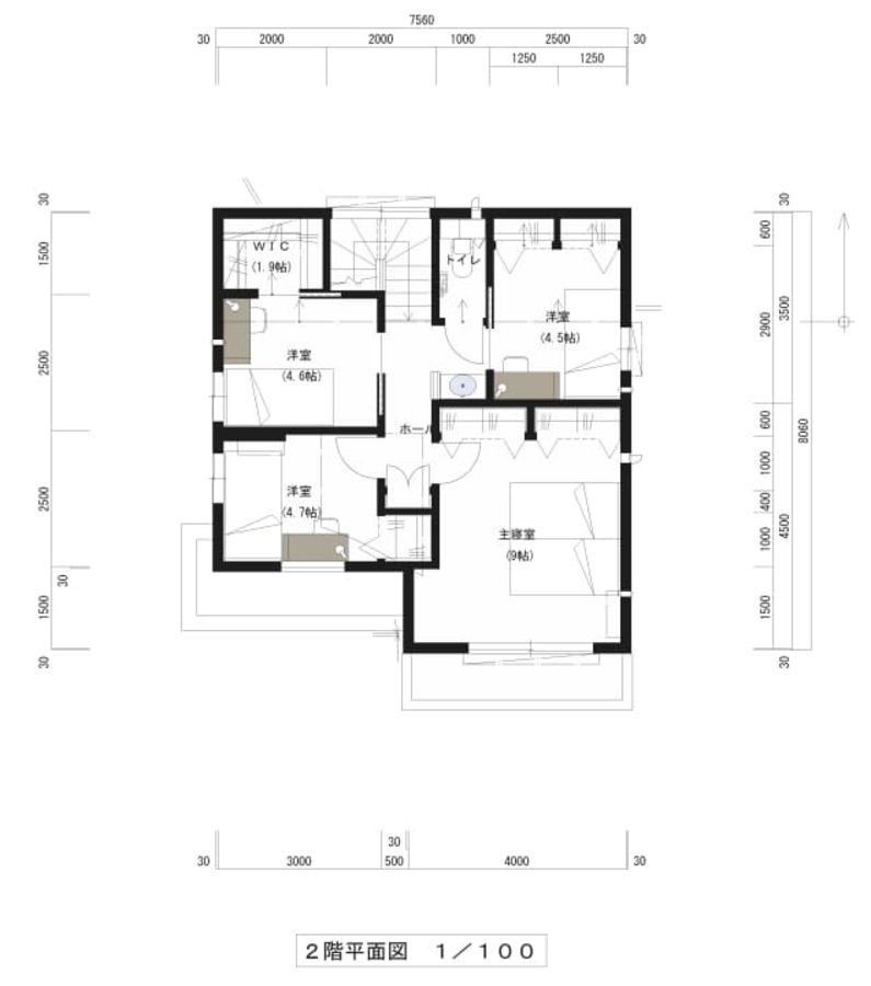
【No.9】
木造2階建「シャーウッド」。
積水ハウス独自の構法で、伸びやかな空間を生み出します。
柔らかな色使いが心地よい、心安らぐ住まいです。
LDKは約19.7帖。
開放感あふれる約3mのクリアビューサッシから、ウッドデッキへ出入りできます。
外からの視線が気になりにくいプライベート空間です。
【No.20】
軽量鉄骨造2階建「イズ」。
安定した強度を保ちながら、柱の少ない開放的な空間づくりを実現します。
駐車・駐輪スペースを備えています(車種による)。
LDKは、木の風合いとライトグレーの組み合わせが自然な陰影を生み趣のある空気感を演出。
南側の窓から陽光をたっぷり取り込みます。
※将来にわたり採光を保証するものではありません。
【区画】
広大な開発エリアに寄り添うロケーション。
自然と利便が調和した住みよい環境です。
分譲地西側が面する都道は、歩道が整備されています。
【アクセス】
西武拝島線「武蔵砂川」駅まで徒歩15分。
「西武新宿」駅へ急行利用で46分のダイレクトアクセス。
隣駅の「玉川上水」駅から多摩モノレールを利用すると、立川方面への移動もスムーズです。
【周辺環境】
徒歩15分圏内に生活利便施設や小中学校、緑豊かな公園が揃う、子育て世帯にも暮らしやすい住環境。
フーズマーケットさえき 大南店:現地から450m~470m/徒歩6分(最長)
マツモトキヨシ 武蔵村山店:現地から510m~530m/徒歩7分(最長)
イオンモールむさし村山:現地から1440m~1460m/車6分(最長)
みらい保育園:現地から870m~890m/徒歩11分~12分
武蔵村山市立小中一貫校 大南学園 第七小学校:現地から1040m~1060m/徒歩13分~14分
武蔵村山市立小中一貫校 大南学園 第四中学校:現地から920m~940m/徒歩12分(最長)
大南公園:現地から約1180~1200m/徒歩15分
- 建売
- 建売
- ハウスメーカー
- 積水ハウス/セキスイハウス
- 沿線名/駅名
- 西武拝島線「武蔵砂川」駅
- 総区画数
- 18 区画
- 駅・バス停からの最短時間
- 15分
- 価格帯
- 7,440万円-
7,690万円
- 土地面積
- 123.15㎡
- 所在地
- 東京都武蔵村山市大南1丁目145番14他
- 沿線名/駅名
- 西武拝島線「武蔵砂川」駅まで徒歩15分(最長)
最寄バス停「大南一丁目」停留所まで徒歩3分(最長)、「立川バス」に乗車、JR中央線「立川」駅まで29分
- 価格帯
- 7440万円(1戸)~7690万円(1戸)
- 販売戸数/総戸数
- 2戸/18戸
- 建物面積
- 110.39㎡~114.50㎡
- 土地面積
- 123.15㎡ ●私道負担面積 私道負担なし
- 物件構造
- 木造2階建(軸組工法)(1戸)、軽量鉄骨2階建(1戸)
- 用途地域
- 第一種低層住居専用地域
- 建築年月
- 2026年4月(No.9・No.20)
- 引渡可能時期
- 2026年5月 引き渡し予定(No.9・No.20)
- 売主
- 積水ハウス株式会社
- 販売会社名(取引態様)
- 積水ハウス株式会社(土地建物売主)
- 情報提供元
- 積水ハウス株式会社 多摩支店
- お問い合わせ先
積水ハウス株式会社 東京営業本部 定休日:火曜日、水曜日、祝日 営業時間:9:00〜18:00 ※当会場では購入のお申込みは受け付けておりません。 TEL:0120-776-511
- 開発許可または建築確認番号
- 建築確認番号: 第東日本25-10998号、第東日本25-11042号
- 宅建番号その他
積水ハウス株式会社
国土交通大臣(16)第540号
一般社団法人不動産協会会員、公益社団法人首都圏不動産公正取引協議会加盟
- 備考欄
道路幅員:5m アスファルト舗
約5m、6m、13.9m~約17.6m(アスファルト舗装・インターロッキング舗装)主たる設備等の概要
水道:公営水道、雨水:浸透式、汚水:公共下水、ガス:都市ガス、電気:東京電力 ※電気・ガス:他の小売事業者の選択も可能ですその他の重要な事項
●所在地:東京都武蔵村山市大南一丁目145番14他●道路幅員:約5m、6m、13.9m~約17.6m(アスファルト舗装・インターロッキング舗装)●都市計画施設:本分譲地の一部は都市計画道路の指定を受けています●売主:積水ハウス株式会社 多摩支店 TEL:042-540-8011●まちなみガイドライン:本分譲地では、快適で良好な住環境を皆様に提供する為に外構等について基本的なガイドラインを設けております。●積水ハウス株式会社東京営業本部では、購入のお申込みは受け付けておりません。
- 情報提供日
- 2026-05-08
- 次回更新予定日・取引有効期限
- 2026-05-22
東京都武蔵村山市周辺マップ
- ※分譲地は地図中心の赤いピン付近に所在します。(実際の物件所在地から多少ずれることがあります)
- ※地図上に表示される物件・施設の情報はおおよその所在地を表すものであり、実際の所在地とは異なる場合がございます。
- ※周辺施設は、分譲地の所在地から半径3km以内の施設(大型施設は半径5km以内)のみを表示しています。
- 徒歩
- 電車
- この機能は準備中です。
- 車
- ※上記に表示されている地図・ルート検索・周辺施設情報は、Google社が提供するGoogleMapより物件の所在地に合わせて取得しております。そのため、表示されている施設情報および物件からの距離・移動時間などは実際と異なる場合があります。正確な情報は各分譲地にお問い合わせください。
積水ハウス / 多摩支店
東京都立川市曙町2-37-7(コアシティ立川1F) 定休日:火曜日・水曜日・祝日
お電話の際には「家選びネットを見た」とお問い合わせください。
- ※定休日などにより、お問い合わせのお返事にお時間をいただく場合がございます。
- ※お急ぎの方は上記の電話番号より直接ご連絡ください。
大手ハウスメーカーのおすすめ物件
ハウスメーカー8社が販売している武蔵村山市の物件
ハウスメーカー8社が販売している近隣エリアの物件
【Panasonic Homes】パークナードテラス町田成瀬 最終期
東京都町田市
JR横浜線「成瀬」駅 徒歩8~9分
8,780万円〜 12区画 徒歩8分
















































