スマートハイムプレイス湘南・平塚中原
(分譲住宅)
マイレーティング
検討・比較をするためにこの物件を採点できます。
(採点した物件はお気に入りで確認できます)
□◆□◆□◆□◆□◆□◆□◆□◆□◆□◆□◆□◆□◆□◆□
■最終1棟/500万円DOWN!
JR東海道本線(東京~熱海)「平塚」駅バス14分 「新大繩橋」バス停下車徒歩2分
「横浜」駅や都内のターミナルへもダイレクト、始発利用可の「平塚」駅
【子育て環境充実のエリア】
徒歩圏内にスーパーや小・中学校などの教育施設、子育て環境充実のエリア
□◆□◆□◆□◆□◆□◆□◆□◆□◆□◆□◆□◆□◆□◆□
■□ 快適・便利で地球環境にやさしい セキスイハイムのスマート技術と □■
□■ 災害に強い積水化学グループの インフラ技術を活用したまちづくり ■□
スマートハイムシティの生活は、
『毎日がもっと快適、もっと便利に。』
『みんなが嬉しいサステナブルな暮らし。』
『長い人生、まちが育む地域のコミュニティ。』
『災害時の安心をスタンダードに−家族の命を守る− 』
『災害後の安心もスタンダードに−暮らしを守る−』
快適・便利で地球環境にやさしく、災害に強いサスティナブルなまち
詳しくは公式HPへ、『スマートハイムシティ』で検索!!
- 所在地
- 神奈川県平塚市中原3丁目821番7 他
- 沿線名/駅名
- JR東海道本線(東京~熱海) 「平塚」駅 バス14分 バス停新大繩橋 徒歩2分~2分
- 価格帯
- 4490万円
- 販売戸数/総戸数
- 1戸/5戸
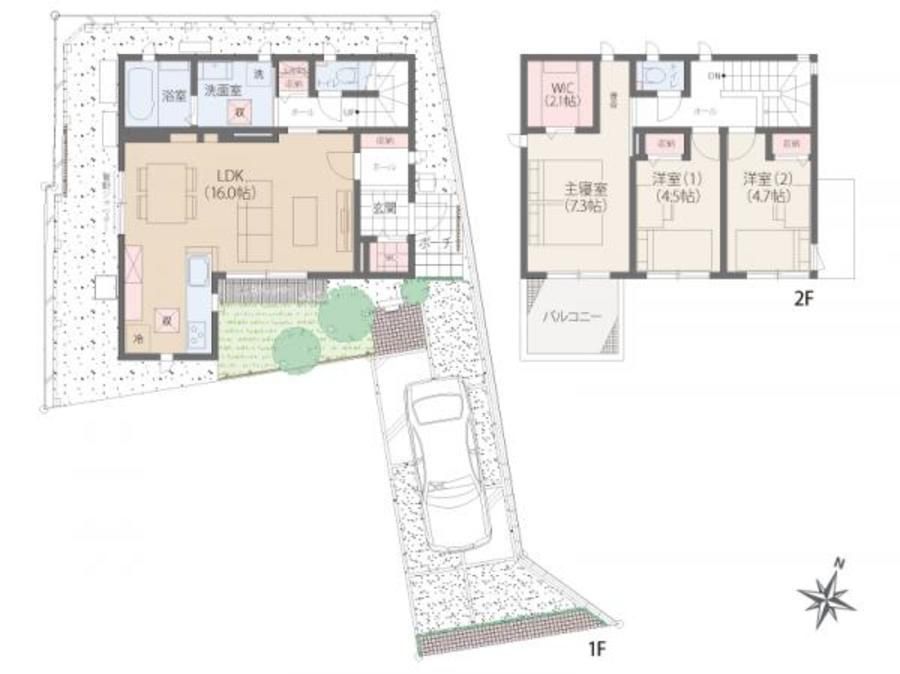
- 間取り
- 3LDK
- 建物面積
- 85.43m2
- 土地面積
- 119.80m2
- 開発面積(総面積)
- 759.44m2
この物件のこだわりポイント
【セキスイハイム】
海や川、山が揃い様々な自然風景を楽しめる、永住の地に相応しい住環境。
セキスイハイムの住まい技術で『安心して快適に暮らせる』一生もののお住まいを。
【区画】
区画No.4:3LDK+WIC+SIC
土地面積:119.80平米/建物面積:85.43平米
太陽光発電システム:4.32kW/蓄電池システム:屋内4.9kWh
【ロケーション・アクセス】
平塚市立中原小学校(最短:約940m/徒歩12分・最長:約970m/徒歩13分)
平塚市立中原中学校(最短:約660m/徒歩9分・最長:約700m/徒歩9分)
ユーコープ 中原店(最短:約270m/徒歩4分・最長:約300m/徒歩4分)
クリエイトS・D 平塚中原店(最短:約660m/徒歩9分・最長:約690m/徒歩9分)
【いきいきと子育て、様々な経験ができる公園や施設のある暮らし】
平塚市総合公園や美術館・博物館が近くに点在、様々な経験や発見が得られそう。
【スマートハイム】
太陽光発電システム、HEMSを利用した、できるだけ電気を買わないサステナブル発想の住まい。
詳しくは、『スマートハイムシティ』で検索!
- 建ぺい率・容積率
- 建ぺい率・容積率:60%・200%
- 地目
- 宅地
- 物件構造
- 鉄骨造
- 用途地域
- 第1種住居地域
- 完成予定日
- 完成済
- 建築年月
- 2023/03
- 販売時期
- 販売中
- 引渡可能時期
- 相談
- 売主
- 東京セキスイハイム株式会社
- 販売会社名(取引態様)
- 売主
- 情報提供元
- 東京セキスイハイム株式会社
- お問い合わせ先
東京セキスイハイム 0120-816-336
- 開発許可または建築確認番号
- 第ERI-22028653号(2022年8月8日)号
- 宅建番号その他
建設業許可番号:国土交通大臣 許可(特—4)第22302号 宅地建物取引業者許可番号:国土交通大臣(4)第7584号
- 備考欄
■公式HPでプレゼント企画実施中!詳しくは公式HPへ!
■休業情報等については公式HPをご覧ください。
■見学可能です。
■ご来場について:
営業時間内でも、ご予約のお客様がいらっしゃらない場合、
分譲地にスタッフが不在の場合もございます。
WEBまたはお電話にてご来場の予約をいただき、お越しくださいませ。
尚、メールやお電話でも各種ご相談を承っておりますので、お気軽にお問い合わせください。
---------
■まちなみガイドラインがあります。
■建物仕様について、太陽光発電システム・HEMS・EVコンセントの設置を条件とします。
■先着順申込受付中のため、申込済・契約済の場合がありますので、ご了承ください。
■お申込の際には、お認印・収入証明書(給与収入のみの方:直近2年分源泉徴収票、
給与収入のみ以外の方:確定申告書一式の写し[直近3期分]・身分証明書(運転免許証等)が必要です。
■掲載の図面は計画段階の図面を基に描き起こしたもので、実際とは異なる場合があります。
また、施工上やむをえない変更が生じた場合は、建物竣工時の状態を優先します。
■まちなみ画像・CGには販売済区画を含む場合がございます。最新の販売状況は区画図等をご参照下さい。
■家具・調度品等は販売価格に含まれません。
■お引渡時期については、諸手続き完了後となります。
ただし造成・建築中の物件については、完工後のお引渡となります。
■準防火地域
■第2種高度地区
■文化財保護法
■別途、共用持分としてゴミ置場6.17m2(雑種地)の1/5持分あり
- 情報提供日
- 2025-12-16
- 次回更新予定日・取引有効期限
- 2025-12-23
パノラマ
神奈川県平塚市周辺マップ
- ※分譲地は地図中心の赤いピン付近に所在します。(実際の物件所在地から多少ずれることがあります)
- ※地図上に表示される物件・施設の情報はおおよその所在地を表すものであり、実際の所在地とは異なる場合がございます。
- ※周辺施設は、分譲地の所在地から半径3km以内の施設(大型施設は半径5km以内)のみを表示しています。
- 徒歩
- 電車
- この機能は準備中です。
- 車
- ※上記に表示されている地図・ルート検索・周辺施設情報は、Google社が提供するGoogleMapより物件の所在地に合わせて取得しております。そのため、表示されている施設情報および物件からの距離・移動時間などは実際と異なる場合があります。正確な情報は各分譲地にお問い合わせください。
セキスイハイム / 東京セキスイハイム
東京都新宿区西新宿3-7-1 新宿パークタワー34階N棟 定休日:火曜日・水曜日
お電話の際には「家選びネットを見た」とお問い合わせください。
- ※定休日などにより、お問い合わせのお返事にお時間をいただく場合がございます。
- ※お急ぎの方は上記の電話番号より直接ご連絡ください。
























































