スマートハイムシティ都賀
(分譲住宅)
マイレーティング
検討・比較をするためにこの物件を採点できます。
(採点した物件はお気に入りで確認できます)
【スマートハイムシティ都賀】
土地面積35坪以上で、広々とした庭や駐車場が確保できます
車通りも少なく、お子さまのお散歩も安心してできる静かな住宅地で、
落ち着きのある暮らしをしませんか
【ロケーション】
マルエツ新都賀店/徒歩13分~15分
商業施設が充実しているので、毎日の生活に便利です。
都賀保育園/徒歩9分~11分・若松小学校徒歩19分~21分!
保育園はお子さまと歩いて行けるのが嬉しいですね。小学校に上がっても安心です。
【プラン】
家族がゆったり暮らす3LDK、収納計画を重視した4LDK、部屋数重視の5LDKなど
ご家族の人数、成長に合わせたプランをご用意しています
【条件付き土地】
緑に囲まれたあなただけの理想の住まいを
セキスイハイムで叶えてみませんか?
≪区画情報≫
全区画35以上!
設計図・御見積のご案内も受付中
- 所在地
- 千葉県千葉市若葉区若松町459番1他
- 沿線名/駅名
- JR総武本線 「都賀」駅 徒歩11分~13分
千葉都市モノレール2号線 「都賀」駅 徒歩11分~13分
- 価格帯
- 5620万円
- 販売戸数/総戸数
- 1戸/32戸
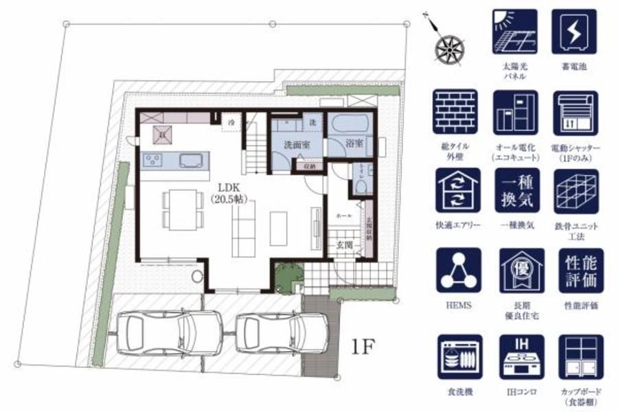
- 間取り
- 3LDK
- 建物面積
- 98.16m2
- 土地面積
- 159.26m2
- 開発面積(総面積)
- 5735.08m2
この物件のこだわりポイント
【セキスイハイムの特徴】
≪設計通り正しくつくる≫
「高品質」な家をすべてのお客様へ。
たどり着いた答えが、風雨から守りながら工場でつくる「ユニット工法」。
設備組み込みまで工程の大半を屋根の下で大切につくります。
≪建物を支えるベタ基礎≫
「線」で支える一般的な布基礎と異なり、
「面」で支えるベタ基礎は地盤への荷重を分散し、
液状化・不動沈下による被害軽減が期待できます。
≪長期サポートシステム≫
品質に自信があるからできる「60年間の長期サポートシステム」。
住まいを知り尽くしたスタッフが、
構造躯体から、基礎、水回り設備の状況なども診断します。
- 建ぺい率・容積率
- 建ぺい率・容積率:50%・100%/60%・200%
- 地目
- 宅地
- 用途地域
- 第1種低層住居専用地域
- 完成予定日
- 完成済
- 販売時期
- 販売中
- 引渡可能時期
- 相談
- 売主
- 東京セキスイハイム株式会社
- 販売会社名(取引態様)
- 売主
- 情報提供元
- 東京セキスイハイム株式会社
- お問い合わせ先
東京セキスイハイム株式会社 0120-190-816
- 開発許可または建築確認番号
- ERI-第24035727号(2024年10月22日)号
- 宅建番号その他
建設業許可番号:国土交通大臣 許可(特—4)第22302号 宅地建物取引業者許可番号:国土交通大臣(4)第7584号
- 備考欄
■公式HPでプレゼント企画実施中!詳しくは公式HPへ!
■休業情報等については公式HPをご覧ください。
■見学可能です。
■ご来場について:
営業時間内でも、ご予約のお客様がいらっしゃらない場合、分譲地にスタッフが不在の場合もございます。
WEBまたはお電話にてご来場の予約をいただき、お越しくださいませ。
尚、メールやお電話でも各種ご相談を承っておりますので、お気軽にお問い合わせください。
---------
■まちなみガイドラインがあります。
■建物仕様について、太陽光発電システム・HEMS・EVコンセントの設置を条件とします。
■先着順申込受付中の物件は、申込済・契約済の場合がありますので、ご了承ください。
■お申込の際には、お認印・収入証明書(給与収入のみの方:直近2年分源泉徴収票、
給与収入のみ以外の方:確定申告書一式の写し[直近3期分]・身分証明書(運転免許証等)が必要です。
■掲載の図面は計画段階の図面を基に描き起こしたもので、実際とは異なる場合があります。
また、施工上やむをえない変更が生じた場合は、建物竣工時の状態を優先します。
■まちなみ画像・CGには販売済区画を含む場合がございます。最新の販売状況は区画図等をご参照下さい。
■家具・調度品等は販売価格に含まれません。
■お引渡時期については、諸手続き完了後となります。ただし造成・建築中の物件については、完工後のお引渡となります。
■ゴミ置き場(459-47)2.51m2 持分1/12 No5~14、26、27
ゴミ置き場(459-48)2.51m2 持分1/12 No15~20、28~33
ゴミ置き場(459-10)2.71m2 持分1/10 No1~4、21~25
です。ゴミ置き場(459-10)には分譲地外から1軒含んでいます。
■総区画数:32区画(優先分譲にて2区画販売済み)
- 情報提供日
- 2026-02-04
- 次回更新予定日・取引有効期限
- 2026-02-11
コンセプト
ランドスケープ
ギャラリー
アクセス・周辺環境
JR横須賀線・総武快速本線(総武本線直通)利用
※所要時間は通勤ラッシュ時のもので、時間帯により異なります。また乗り換えがある場合は所要時間に含まれております。※yahoo路線情報駅すぱあと2023年8月調べ
周辺環境
JR総武本線・千葉都市モノレール「都賀」駅(最短:約850m/徒歩11分・最長:約990m/徒歩13分)横須賀線・総武線快速への直通運転を行なっている総武本線快速停車駅です。駅行きのバスが停まる停留所までは徒歩3分〜4分。
都賀の台幼稚園(最短:約600m/徒歩8分・最長:約740m/徒歩10分)「よく考え、仲良くやさしく、元気よく、最後までがんばる子」をモットーに調和のとれた保育を目指してます。
都賀保育園(最短:約700m/徒歩9分・最長:約840m/徒歩11分)「元気で明るい子・思いやりのある子ども・考える子ども」を保育目標としており、食育活動も盛んです。
千葉市立若松小学校(最短:約1500m/徒歩19分・最長:約1640m/徒歩21分)「心豊かで たくましく生きる児童の育成」を教育目標としています。森に隣接しており、豊かな自然環境と共に学校生活を過ごしています。
千葉市立山王中学校(最短:約1800m/徒歩23分・最長:約1940m/徒歩25分)「叡智・健康・心」をモットーに豊かな感性を持ち、心身ともに健康で、自ら学び自律できる生徒の育成を目指してます。
板谷内科クリニック(最短:約850m/徒歩11分・最長:約990m/徒歩13分)1989年開院の「町のお医者さん」。内科一般の診療から、呼吸器系疾患や糖尿病などの生活習慣病にも対応します。
ランドロームフードマーケット 都賀店(最短:約750m/徒歩10分・最長:約890m/徒歩12分)町のスーパーとして地域に密着した、便利なスーパーを目指してます。
マルエツ 新都賀店(最短:約1000m/徒歩13分・最長:約1140m/徒歩15分)【営業時間】午前10時ー深夜12時 遅くまで営業しているのでお仕事帰りにお買い物ができます。また広々とした駐車場があるので重いものや週末の買い出しに便利です。
サンドラッグ 若松店(最短:約450m/徒歩6分・最長:約590m/徒歩8分)【営業時間】午前9時半ー夜9時半 最寄りのドラッグストアー。医療品はもちろん、日用品も豊富に揃えています。
若松町公園(最短:約300m/徒歩4分・最長:約440m/徒歩6分)芝生の広場と遊具のあるグラウンドがある公園です。遊歩道で一周できるようになっており、トイレや自動販売機も充実。幅広い年代に親しまれる公園です。
設備仕様
太陽光発電システム
①もしもの災害時でも日中電気を使える安心。 ②ソーラー発電で月々の光熱費が抑えられます。 ③自宅で電気を作って暮らすエコな暮らしをサポート ※メーカーのモデルチェンジにより形状が変更となる場合があります。 ※①事前に計画したコンセントでのみ電力使用が可能
蓄電池
①停電時でも生活に最低限 必要な電力を確保。②太陽光発電の余った電気を貯めて夜に使うエコな生活。※停電時には蓄電池の残量が無いと復旧しません。停電時に自動ですべてのコンセント・照明・設備に電気が供給されます。同時に使用できる電力には限りがあります。
スマートハイムナビ(HEMS)
①電力状況を見える化し、省エネをアドバイス。 ②空調機器などを外出先からスマホで操作。 ③外出先からスマホでお風呂のお湯張りを開始。 ④子どもの帰宅や宅配便をスマホに通知。 ※②、③、④ 対象の機種には制限があります。事前にアプリのダウンロードが必要です。
快適エアリー(通年型空気調節システム)
①一階のフロア全体が足元からじんわり暖かい。 ②廊下や洗面所など部屋以外にも暖かさが届く。 ③家中の温度差を減らし、夏爽やか冬あったか。 ④お家の中の温度差が少ない心地よい暮らし。 ※① 空調システム用のグリル・ガラリ等を設置しない空間は対象外です。
タイル外壁
①塗り替えがずっと不要な外壁。 ②存在感のある質感がいつまでも続く外壁材。 ※①目地部材の交換は必要です。
電動シャッター
雨や寒い日でも窓を開けずに開閉できて便利。 ※一部のシャッターにのみ採用。画像は参考イメージ。
食器洗い乾燥機
①家事を減らし「家族の時間」をもっと楽しく。 ②家事の時短、節水に効果あり、手荒れ対策にも。 ③食器洗いの時間が家族とのくつろぎタイムに。
工場生産
設計どおりの強さ・品質を約束する家づくり。
高強度ユニット
数百年に一度の地震※にも備えるユニット ※住宅性能表示制度の耐震等級(倒壊防止)に基づきます。
ボックスラーメン構造
ユニットを連結し強靭な構造に。
ユニット工法
工場で作ったユニットを組み上げて住宅を作る。※建築規模や天候、その他の条件により一日で完了しない場合があります。
ベタ基礎
液状化に強い、建物を面で支えるベタ基礎。
高断熱住宅
天井・外壁には高性能グラスウールを充填。
もっと見る
閉じる
街づくり
ライフスタイル提案
千葉県千葉市若葉区周辺マップ
- ※分譲地は地図中心の赤いピン付近に所在します。(実際の物件所在地から多少ずれることがあります)
- ※地図上に表示される物件・施設の情報はおおよその所在地を表すものであり、実際の所在地とは異なる場合がございます。
- ※周辺施設は、分譲地の所在地から半径3km以内の施設(大型施設は半径5km以内)のみを表示しています。
- 徒歩
- 電車
- この機能は準備中です。
- 車
- ※上記に表示されている地図・ルート検索・周辺施設情報は、Google社が提供するGoogleMapより物件の所在地に合わせて取得しております。そのため、表示されている施設情報および物件からの距離・移動時間などは実際と異なる場合があります。正確な情報は各分譲地にお問い合わせください。
セキスイハイム / 東京セキスイハイム
東京都新宿区西新宿3-7-1 新宿パークタワー34階N棟 定休日:火曜日・水曜日
お電話の際には「家選びネットを見た」とお問い合わせください。
- ※定休日などにより、お問い合わせのお返事にお時間をいただく場合がございます。
- ※お急ぎの方は上記の電話番号より直接ご連絡ください。
セキスイハイム(東京セキスイハイム)が販売している物件
ハウスメーカー8社が販売している千葉市の物件
大手ハウスメーカーのおすすめ物件
ハウスメーカー8社が販売している近隣エリアの物件
セキュレア四街道大日 Residence SAKURAGAOKA(建築条件付宅地分譲)
千葉県四街道市
JR総武本線「四街道」駅まで徒歩20分~21分
1,380万円〜 12区画 徒歩20分










































































