- 建売
- 建売
- ハウスメーカー
- パナソニック ホームズ/パナホーム
- 沿線名/駅名
- 三岐鉄道三岐線丹生川駅
- 総区画数
- 21 区画
- 駅・バス停からの最短時間
ー
- 価格帯
- 4,270万円
- 土地面積
- 207.54㎡
- 所在地
- 三重県いなべ市大安町石榑東2420番17
- 沿線名/駅名
- 三岐鉄道三岐線丹生川駅より距離3.2km
三岐鉄道三岐線三里駅より距離3.7km
- 価格帯
- 4270万円(1区画)
- 最多価格帯
- 4200万円台(1区画)
- 販売戸数/総戸数
- 1区画/21区画
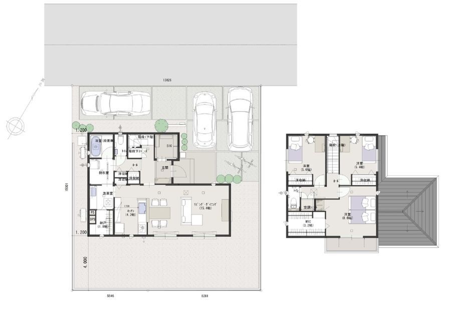
- 間取り
- 3LDK+3S
- 建物面積
- 112.25m2
- 土地面積
- 207.54m2
- 開発面積(総面積)
- 7038.33㎡(内、当社856.94㎡)
この物件のこだわりポイント
◆モデルハウス物件の特徴
・納戸、シューズインクローク、ウォークインクローゼットなど大容量の収納スペースですっきり収納♪
・独立した洗面室と脱衣室で、動線の交わりを解消!
・収納率 約18.2%
戸建住宅の収納率の目安は、延床面積に対して10%〜15%程度が適切とされております。
収納率が十分に確保されているため、物の整理整頓がしやすく、生活空間を広くご利用いただけます。
- 建ぺい率・容積率
- 建ぺい率:60%、容積率:200%
- 地目
- 宅地
- 物件構造
- 軽量鉄骨造2階建
- 用途地域
- 指定なし
- 完成予定日
- 2024年7月下旬完成予定
- 引渡可能時期
- 即
- 売主
- パナソニックホームズ株式会社
- 販売会社名(取引態様)
- パナソニックホームズ株式会社(売主)
- 情報提供元
- パナソニックホームズ株式会社中部第二支社(三重)
- お問い合わせ先
パナソニックホームズ株式会社 中部第二支社 桑名営業所 080-2472-5182
- 開発許可または建築確認番号
- ERI-24002037
- 宅建番号その他
パナソニックホームズ株式会社中部第二支社
〒514-0016 三重県津市乙部37番5号
国土交通大臣(15)第982号
(一社)不動産協会会員:(公社)首都圏不動産公正取引協議会加盟業者
- 備考欄
公営水道、本下水、個別LPG
- 情報提供日
- 2025-12-19
- 次回更新予定日・取引有効期限
- 2025-12-26
三重県いなべ市周辺マップ
- ※分譲地は地図中心の赤いピン付近に所在します。(実際の物件所在地から多少ずれることがあります)
- ※地図上に表示される物件・施設の情報はおおよその所在地を表すものであり、実際の所在地とは異なる場合がございます。
- ※周辺施設は、分譲地の所在地から半径3km以内の施設(大型施設は半径5km以内)のみを表示しています。
- 徒歩
- 電車
- この機能は準備中です。
- 車
- ※上記に表示されている地図・ルート検索・周辺施設情報は、Google社が提供するGoogleMapより物件の所在地に合わせて取得しております。そのため、表示されている施設情報および物件からの距離・移動時間などは実際と異なる場合があります。正確な情報は各分譲地にお問い合わせください。
パナソニック ホームズ / 中部第二支社
三重県津市乙部37-5 定休日:火曜日・水曜日
お電話の際には「家選びネットを見た」とお問い合わせください。
- ※定休日などにより、お問い合わせのお返事にお時間をいただく場合がございます。
- ※お急ぎの方は上記の電話番号より直接ご連絡ください。
パナソニック ホームズ(中部第二支社)が販売している物件
土 地
パナソニック ホームズ/パナホーム
パークナードテラス鈴鹿・神戸【パナソニックホームズ】(建築条件付)
三重県鈴鹿市
近鉄鈴鹿線鈴鹿市駅より徒歩5分〜7分
1,381万円〜 徒歩5分 71区画







































