- 所在地
- 静岡県富士市中島字中堀下248-9
- 沿線名/駅名
- JR身延線「竪堀」駅 徒歩6分
- 価格帯
- 4,980万円
- 販売戸数/総戸数
- 1戸/8区画
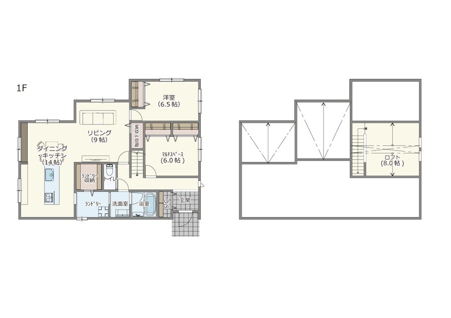
- 間取り
- 1LDK+2S
- 建物面積
- 108.47㎡(32.81坪)
- 土地面積
- 213.17㎡(64.48坪)
- 開発面積(総面積)
- 1LDK+2S(納戸)
この物件のこだわりポイント
■富士中央小学校まで1500m(徒歩19分)
木のぬくもりを感じられる内装を施したリビング・ダイニングキッチン。
L字型に配置しているので、それぞれ分離した空間に。
洗面室と脱衣室はそれぞれ独立して配置されている生活のしやすい間取りとなっています。
- 建ぺい率・容積率
- 建ペい率:60%、容積率:150%
- 地目
- 宅地
- 物件構造
- 木造2階建(枠組壁工法)
- 用途地域
- 第2種中高層住居専用地域
- 完成予定日
- 2025年6月
- 建築年月
- 令和7年6月
- 販売時期
- 販売中
- 引渡可能時期
- 2025年9月中旬以降
- 売主
- トヨタホーム静岡(株)
- 販売会社名(取引態様)
- 売主
- 情報提供元
- トヨタホーム静岡(株)
- お問い合わせ先
トヨタホーム静岡(株) 富士店 恩田(おんだ)TEL:080-9025-7514
- 開発許可または建築確認番号
- 富都建指令第2-21号(令和5年11月28日)
- 宅建番号その他
トヨタホーム静岡(株)
〒435-0044 静岡県浜松市中央区西塚町303-7
静岡県知事(1)第014547号
- 備考欄
設備:公営水道、本下水、オール電化
道路幅:5m、アスファルト舗装
※47.97m2(14.51坪)の敷地延長部分を含みます
- 情報提供日
- 2026-05-25
- 次回更新予定日・取引有効期限
- 2026-06-08
静岡県富士市周辺マップ
- ※分譲地は地図中心の赤いピン付近に所在します。(実際の物件所在地から多少ずれることがあります)
- ※地図上に表示される物件・施設の情報はおおよその所在地を表すものであり、実際の所在地とは異なる場合がございます。
- ※周辺施設は、分譲地の所在地から半径3km以内の施設(大型施設は半径5km以内)のみを表示しています。
- 徒歩
- 電車
- この機能は準備中です。
- 車
- ※上記に表示されている地図・ルート検索・周辺施設情報は、Google社が提供するGoogleMapより物件の所在地に合わせて取得しております。そのため、表示されている施設情報および物件からの距離・移動時間などは実際と異なる場合があります。正確な情報は各分譲地にお問い合わせください。
トヨタホーム / トヨタホーム静岡
静岡県浜松市中央区西塚町303-7 定休日:火曜日・水曜日
お電話の際には「家選びネットを見た」とお問い合わせください。
- ※定休日などにより、お問い合わせのお返事にお時間をいただく場合がございます。
- ※お急ぎの方は上記の電話番号より直接ご連絡ください。





































