- 所在地
- 愛知県岡崎市若松町若松西二丁目10番5
- 沿線名/駅名
- 東海道本線 「岡崎」駅 徒歩27分
- 価格帯
- 2530万円
- 販売戸数/総戸数
- 未定(販売予定数1区画)/2区画
- 土地面積
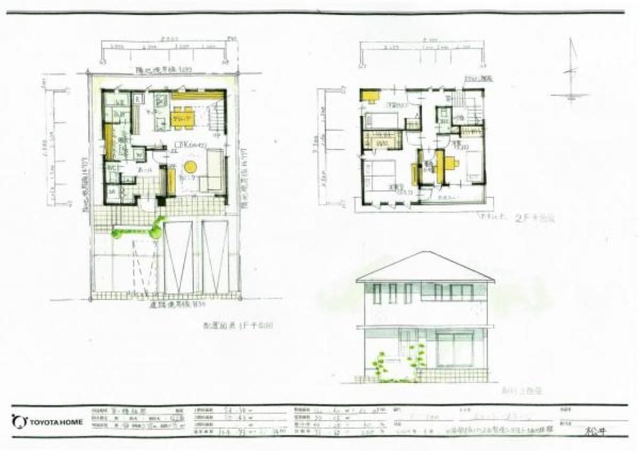
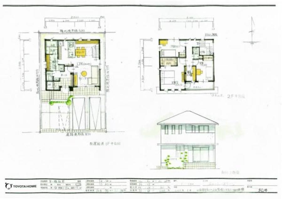
- 161.17m2
この物件のこだわりポイント
■ 岡崎駅南土地区画整理地内 ■
≪岡崎駅周辺で叶える暮らしの5つのポイント≫
(1)JR・愛環「岡崎」駅で叶える電車のある暮らし
<通勤や通学を快適に>
(2)スーパーやドラッグストアなど、生活支援施設がオープン
<毎日の買い物や食事も近くて便利>
(3)区画整理に伴う、街の再開発でコンパクトシティへ
<道路の開通や物販・飲食店・医療施設・公園など充実の環境>
≪土地の特徴≫
(1)高低差が少なく、お出かけも楽しくなるフラットな地形
<玄関まで最短でアプローチでき、外構予算も抑えられます>
(2)当社売主につき、仲介手数料不要
<土地の購入コストを抑えて、こだわりの建物へ>
- 建ぺい率・容積率
- 建ぺい率・容積率:60%・200%
- 地目
- 田
- 用途地域
- 第1種住居地域
- 完成予定日
- 完成済
- 売主
- トヨタすまいるライフ株式会社
- 販売会社名(取引態様)
- 売主
- 情報提供元
- トヨタホーム株式会社
- お問い合わせ先
トヨタすまいるライフ 0120-81-2727 担当者:トヨタホーム営業部
- 宅建番号その他
◎建設業許可番号/愛知県知事許可(特-2)第46207号 ◎宅地建物取引業免許/愛知県知事(15)第3842号 ◎一級建築士事務所/愛知県知事(い-30)第4274号 ◎(一社)中部不動産協会会員 ◎東海不動産公正取引協議会加盟
- 情報提供日
- 2025-11-10
- 次回更新予定日・取引有効期限
- 2025-11-17
愛知県岡崎市周辺マップ
- ※分譲地は地図中心の赤いピン付近に所在します。(実際の物件所在地から多少ずれることがあります)
- ※地図上に表示される物件・施設の情報はおおよその所在地を表すものであり、実際の所在地とは異なる場合がございます。
- ※周辺施設は、分譲地の所在地から半径3km以内の施設(大型施設は半径5km以内)のみを表示しています。
- 徒歩
- 電車
- この機能は準備中です。
- 車
- ※上記に表示されている地図・ルート検索・周辺施設情報は、Google社が提供するGoogleMapより物件の所在地に合わせて取得しております。そのため、表示されている施設情報および物件からの距離・移動時間などは実際と異なる場合があります。正確な情報は各分譲地にお問い合わせください。
トヨタホーム / トヨタすまいるライフ
愛知県豊田市大林町1-81 定休日:水曜日
お電話の際には「家選びネットを見た」とお問い合わせください。
- ※定休日などにより、お問い合わせのお返事にお時間をいただく場合がございます。
- ※お急ぎの方は上記の電話番号より直接ご連絡ください。
トヨタホーム(トヨタすまいるライフ)が販売している物件
【トヨタホーム】GranMORItoyota(グランモリ トヨタ)
愛知県豊田市
名鉄三河線 「豊田市」駅 バス19分 バス停高橋住宅前 徒歩4分~7分
1,948万円〜 徒歩4分 58区画
【トヨタホーム】LIFE PARK 豊田高町ヒルズ 平屋モデルハウスNo.27号棟
愛知県豊田市
名鉄三河線 「猿投」駅 徒歩25分~27分
6,328万円〜 徒歩25分 42区画
ハウスメーカー8社が販売している岡崎市の物件
ハウスメーカー8社が販売している近隣エリアの物件
【トヨタホーム】GranMORItoyota(グランモリ トヨタ)
愛知県豊田市
名鉄三河線 「豊田市」駅 バス19分 バス停高橋住宅前 徒歩4分~7分
1,948万円〜 58区画 徒歩4分
【トヨタホーム名古屋】アクトベース豊田西中山 View Stage
愛知県豊田市
とよたおいでんバス「下中山」バス停 約594m~610m(歩約8分)
1,270万円〜 15区画 徒歩ー分


























































