セキュレア葵区北安東2丁目IV (分譲住宅)
(分譲住宅)
マイレーティング
検討・比較をするためにこの物件を採点できます。
(採点した物件はお気に入りで確認できます)
「セキュレア葵区北安東2丁目IV」は静岡市葵区北安東の静かな住宅街に位置する分譲住宅になります。
南東道路に面し日当たりもよく、周辺には利便施設が点在します。
静岡市立安東中学校をはじめ、徒歩圏内に教育施設や公園、医療施設があり、
普段の生活に便利なドラッグストアやコンビニがある住みやすい場所です。
また静清バイパス「唐瀬インターチェンジ」に出やすく、公共交通機関のしずてつジャストライン「柳新田北」バス停まで徒歩1分のアクセスで通勤、通学にも便利な立地です。
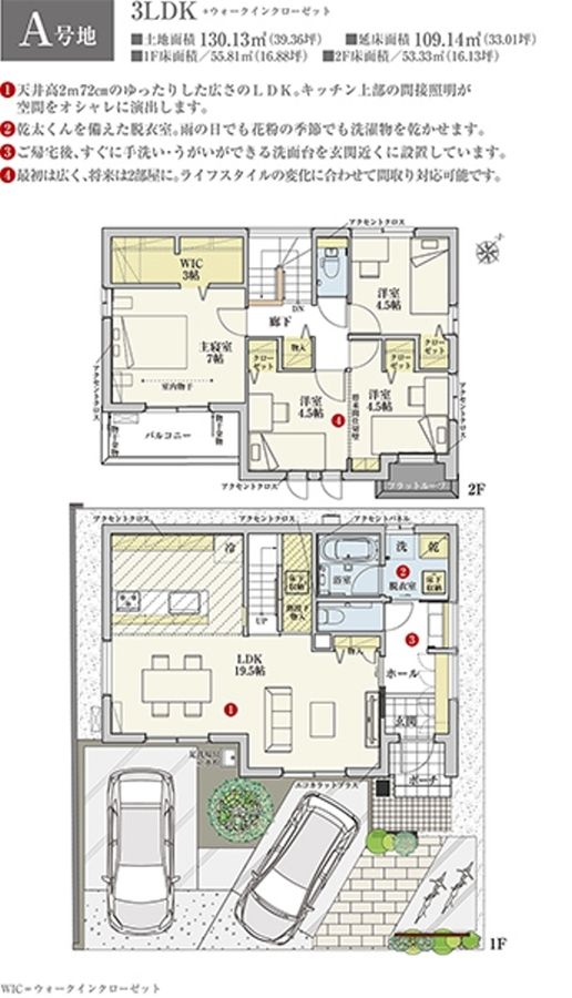
ゆったりした広さのLDKは天井高2m72cm、間接照明が空間をオシャレに演出します。
ご帰宅後、すぐに手洗い・うがいができる洗面台を玄関近くに設置。
2階は将来間仕切を入れることで、3部屋が4部屋に。
太陽光発電・乾太くんを採用し、先進設備を備えた快適な住まいです。
- 所在地
- 静岡県静岡市葵区北安東二丁目557番1
- 沿線名/駅名
- JR東海道本線「静岡」駅までしずてつバス「上足洗線」約15分~20分(徒歩1分の「柳新田北」バス停乗車)
- 価格帯
- 7,330万円
- 最多価格帯
- -
- 販売戸数/総戸数
- 1戸/1戸
- 間取り
- 3LDK(A号地)
- 建物面積
- 109.14m2(A号地)
- 土地面積
- 130.13m2(A号地) 私道負担なし
この物件のこだわりポイント
敷地面積約39坪!教育施設・利便施設が徒歩15分圏内の南東道路に面した分譲住宅!
1階は天井高2m72cm!大空間のLDKを間接照明がオシャレに演出!
太陽光発電システム・ホームセキュリティシステム採用の防災・防犯配慮住宅です!
- 物件構造
- 軽量鉄骨2階建(1戸)
- 用途地域
- 第二種中高層住居専用地域
- 完成予定日
- 令和7年8月完成済 1戸
- 建築年月
- 令和7年8月完成済 1戸
- 販売時期
- 先着順申込受付中
- 引渡可能時期
- 即引渡可 1戸
- 売主
- 大和ハウス工業株式会社
- 販売会社名(取引態様)
- 売主
- 情報提供元
- 大和ハウス工業株式会社
- お問い合わせ先
静岡支店 住宅営業所 担当:山根
- 開発許可または建築確認番号
- 第ERI-25007474号
- 宅建番号その他
大和ハウス工業株式会社 DAIWA HOUSE INDUSTRY CO., LTD.
本社 〒530-8241 大阪市北区梅田3丁目3-5 大和ハウス大阪ビル TEL:0120-590-956
建設業許可番号・国土交通大臣許可(特-2)第5279号
宅地建物取引業者免許番号・国土交通大臣(16)第245号
(一社)大阪府宅地建物取引業協会会員
(一社)不動産協会会員
(公社)近畿地区不動産公正取引協議会加盟
- 情報提供日
- 2025-11-14
- 次回更新予定日・取引有効期限
- 2025-11-21
【70周年記念キャンペーン 選べる70ポイント成約パッケージ概要】
【対象物件】/大和ハウス工業株式会社の分譲住宅【申込条件】2025年10月2日から11月30日までに土地建物売買契約を締結していただける方。●2026年2月28日までにお引渡し可能な方が対象となります。【注意事項】注文住宅をご契約の方は対象外とさせていただきます。●ポイントの使用期限は、土地建物売買契約締結日から30日以内となります。なお、使用期限を過ぎるとポイントは失効とさせていただきます。●申込は1回限り。●余ったポイントは使用することができません。●70ポイントは33万円(税込)相当●プレゼントのお渡し時期については分譲住宅のお引渡し後となります。併せて、お申込日から2週間以降、かつ2026年3月29日までの期間でお申し込みください。●他のキャンペーン・割引制度との併用など、詳しくは担当者にお尋ねください。
静岡県静岡市葵区周辺マップ
- ※分譲地は地図中心の赤いピン付近に所在します。(実際の物件所在地から多少ずれることがあります)
- ※地図上に表示される物件・施設の情報はおおよその所在地を表すものであり、実際の所在地とは異なる場合がございます。
- ※周辺施設は、分譲地の所在地から半径3km以内の施設(大型施設は半径5km以内)のみを表示しています。
- 徒歩
- 電車
- この機能は準備中です。
- 車
- ※上記に表示されている地図・ルート検索・周辺施設情報は、Google社が提供するGoogleMapより物件の所在地に合わせて取得しております。そのため、表示されている施設情報および物件からの距離・移動時間などは実際と異なる場合があります。正確な情報は各分譲地にお問い合わせください。
ダイワハウス / 静岡支店
静岡県静岡市駿河区石田1-3-29 定休日:火曜日・水曜日
お電話の際には「家選びネットを見た」とお問い合わせください。
- ※定休日などにより、お問い合わせのお返事にお時間をいただく場合がございます。
- ※お急ぎの方は上記の電話番号より直接ご連絡ください。











































