- 建売
- 建売
- ハウスメーカー
- 大和ハウス工業/ダイワハウス
- 沿線名/駅名
- JR東海道本線「静岡」駅
- 総区画数
- 12 区画
- 駅・バス停からの最短時間
- 23分
- 価格帯
- 6,300万円台-
6,500万円台
- 土地面積
- 123.43㎡-
124.55㎡
- 所在地
- 静岡県静岡市駿河区南八幡町402番11他
- 沿線名/駅名
- JR東海道本線「静岡」駅まで徒歩23分~24分
- 価格帯
- 6,300万円台~6,500万円台
- 最多価格帯
- 6,000万円台 2戸 ※1,000万円単位
- 販売戸数/総戸数
- 2戸/12戸
- 間取り
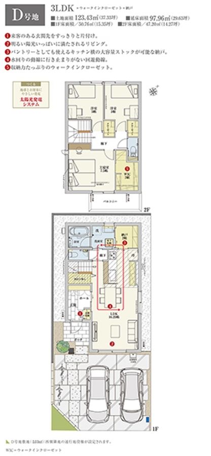
- 3LDK(D号地、H号地)
- 建物面積
- 97.96m2(D号地)、101.63m2(H号地)
- 土地面積
- 123.43m2 私道負担あり 77m2のうち、6分の1の負担持分(D号地)、124.55m2 私道負担なし(H号地)
この物件のこだわりポイント
南部小学校まで徒歩3分圏内。全12区画の閑静な住宅街です。
スーパー、ドラッグストア、公園、図書館、区役所が徒歩圏内に揃っています。
2026年春グランドオープン予定の「イオンスタイル静岡」(仮称)まで徒歩圏内。
- 予告広告
- この物件は予告広告です。販売開始までは、契約または予約の申込み・申込み順位の確保はできません。詳しい情報は「資料請求」にてご確認ください。
- 物件構造
- 軽量鉄骨2階建(2戸)
- 用途地域
- 第一種中高層住居専用地域
- 完成予定日
- 令和7年12月予定 2戸
- 建築年月
- 令和7年12月予定 2戸
- 販売時期
- 令和8年1月上旬予定
- 引渡可能時期
- 令和8年1月予定 2戸
- 売主
- 大和ハウス工業株式会社
- 販売会社名(取引態様)
- 売主
- 情報提供元
- 大和ハウス工業株式会社
- お問い合わせ先
静岡支店(担当:伊藤)
- 開発許可または建築確認番号
- 第ERI-25023563号他
- 宅建番号その他
大和ハウス工業株式会社 DAIWA HOUSE INDUSTRY CO., LTD.
本社 〒530-8241 大阪市北区梅田3丁目3-5 大和ハウス大阪ビル TEL:0120-590-956
建設業許可番号・国土交通大臣許可(特-2)第5279号
宅地建物取引業者免許番号・国土交通大臣(16)第245号
(一社)大阪府宅地建物取引業協会会員
(一社)不動産協会会員
(公社)近畿地区不動産公正取引協議会加盟
- 備考欄
※D号地の敷地面積123.43m2のうち、2.00m2には西側隣地の通行地役権が設定されます。
- 情報提供日
- 2025-12-10
- 次回更新予定日・取引有効期限
- 2025-12-17
静岡県静岡市駿河区周辺マップ
- ※分譲地は地図中心の赤いピン付近に所在します。(実際の物件所在地から多少ずれることがあります)
- ※地図上に表示される物件・施設の情報はおおよその所在地を表すものであり、実際の所在地とは異なる場合がございます。
- ※周辺施設は、分譲地の所在地から半径3km以内の施設(大型施設は半径5km以内)のみを表示しています。
- 徒歩
- 電車
- この機能は準備中です。
- 車
- ※上記に表示されている地図・ルート検索・周辺施設情報は、Google社が提供するGoogleMapより物件の所在地に合わせて取得しております。そのため、表示されている施設情報および物件からの距離・移動時間などは実際と異なる場合があります。正確な情報は各分譲地にお問い合わせください。
ダイワハウス / 静岡支店
静岡県静岡市駿河区石田1-3-29 定休日:火曜日・水曜日
お電話の際には「家選びネットを見た」とお問い合わせください。
- ※定休日などにより、お問い合わせのお返事にお時間をいただく場合がございます。
- ※お急ぎの方は上記の電話番号より直接ご連絡ください。














































