スマートハイムプレイス柏市明原
(分譲住宅)
マイレーティング
検討・比較をするためにこの物件を採点できます。
(採点した物件はお気に入りで確認できます)
*****************************
土地面積約37~51坪で、庭や駐車場が確保できます
多彩な魅力に囲まれた暮らしやすい街並みです
*****************************
【ロケーション】
ピーコックストア 豊四季台店
(最短:約450m/徒歩6分・最長:約490m/徒歩7分)
クリエイトS・D 柏豊四季台店
(最短:約450m/徒歩6分・最長:約490m/徒歩7分)
セブン-イレブン 柏明原店
(最短:約290m/徒歩4分・最長:約330m/徒歩5分)
商業施設が充実しているので、毎日の生活に便利です。
認定こども園 くるみこども園
(最短:約300m/徒歩4分・最長:約340m/徒歩5分)
柏市立柏第一小学校
(最短:約1200m/徒歩15分・最長:約1240m/徒歩16分)
柏西口第二公園
(最短:約240m/徒歩3分・最長:約280m/徒歩4分)
子育て世代も安心です。
**************
- 所在地
- 千葉県柏市明原3丁目463-1
- 沿線名/駅名
- JR常磐線(上野~取手) 「柏」駅 徒歩14分~15分
- 価格帯
- 7580万円
- 販売戸数/総戸数
- 1戸/1戸
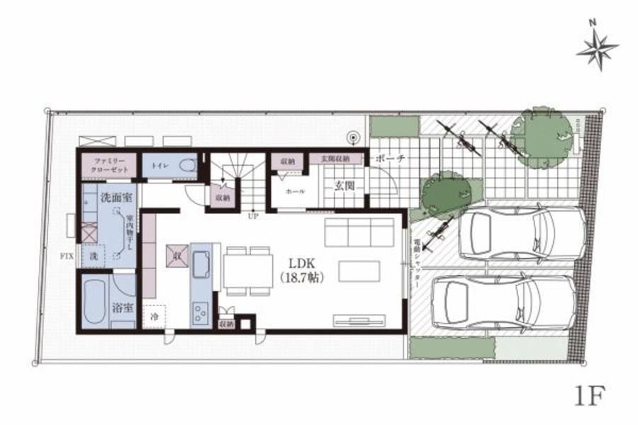
- 間取り
- 3LDK
- 建物面積
- 99.72m2
- 土地面積
- 126.06m2
- 開発面積(総面積)
- 799.2m2
この物件のこだわりポイント
【セキスイハイムの特徴】
≪設計通り正しくつくる≫
「高品質」な家をすべてのお客様へ。
たどり着いた答えが、風雨から守りながら工場でつくる「ユニット工法」。
設備組み込みまで工程の大半を屋根の下で大切につくります。
≪建物を支えるベタ基礎≫
「線」で支える一般的な布基礎と異なり、
「面」で支えるベタ基礎は地盤への荷重を分散し、
液状化・不動沈下による被害軽減が期待できます。
≪長期サポートシステム≫
品質に自信があるからできる「60年間の長期サポートシステム」。
住まいを知り尽くしたスタッフが、
構造躯体から、基礎、水回り設備の状況なども診断します。
- 建ぺい率・容積率
- 建ぺい率・容積率:60%・200%
- 物件構造
- 鉄骨造
- 用途地域
- 第1種中高層住居専用地域
- 完成予定日
- 完成済
- 建築年月
- 2025/12
- 販売時期
- 販売中
- 引渡可能時期
- 相談
- 売主
- 東京セキスイハイム株式会社
- 販売会社名(取引態様)
- 売主
- 情報提供元
- 東京セキスイハイム株式会社
- お問い合わせ先
東京セキスイハイム株式会社 0120-122-816
- 開発許可または建築確認番号
- ERI-25025016号(2025年8月25日)
- 宅建番号その他
建設業許可番号:国土交通大臣 許可(特—4)第22302号 宅地建物取引業者許可番号:国土交通大臣(4)第7584号
- 備考欄
■公式HPでプレゼント企画実施中!詳しくは公式HPへ!
■休業情報等については公式HPをご覧ください。
■見学可能です。
■ご来場について:
営業時間内でも、ご予約のお客様がいらっしゃらない場合、分譲地にスタッフが不在の場合もございます。
WEBまたはお電話にてご来場の予約をいただき、お越しくださいませ。
尚、メールやお電話でも各種ご相談を承っておりますので、お気軽にお問い合わせください。
---------
■まちなみガイドラインがあります。
■建物仕様について、太陽光発電システム・HEMS・EVコンセントの設置を条件とします。
■先着順申込受付中の物件は、申込済・契約済の場合がありますので、ご了承ください。
■お申込の際には、お認印・収入証明書(給与収入のみの方:直近2年分源泉徴収票、
給与収入のみ以外の方:確定申告書一式の写し[直近3期分]・身分証明書(運転免許証等)が必要です。
■掲載の図面は計画段階の図面を基に描き起こしたもので、実際とは異なる場合があります。
また、施工上やむをえない変更が生じた場合は、建物竣工時の状態を優先します。
■まちなみ画像・CGには販売済区画を含む場合がございます。最新の販売状況は区画図等をご参照下さい。
■家具・調度品等は販売価格に含まれません。
■お引渡時期については、諸手続き完了後となります。ただし造成・建築中の物件については、完工後のお引渡となります。
※掲載の省エネ性能ラベルは特定の住戸の性能を示すものであり、全ての住戸の性能を示すものではありません。
- 情報提供日
- 2026-02-04
- 次回更新予定日・取引有効期限
- 2026-02-11
千葉県柏市周辺マップ
- ※分譲地は地図中心の赤いピン付近に所在します。(実際の物件所在地から多少ずれることがあります)
- ※地図上に表示される物件・施設の情報はおおよその所在地を表すものであり、実際の所在地とは異なる場合がございます。
- ※周辺施設は、分譲地の所在地から半径3km以内の施設(大型施設は半径5km以内)のみを表示しています。
- 徒歩
- 電車
- この機能は準備中です。
- 車
- ※上記に表示されている地図・ルート検索・周辺施設情報は、Google社が提供するGoogleMapより物件の所在地に合わせて取得しております。そのため、表示されている施設情報および物件からの距離・移動時間などは実際と異なる場合があります。正確な情報は各分譲地にお問い合わせください。
セキスイハイム / 東京セキスイハイム
東京都新宿区西新宿3-7-1 新宿パークタワー34階N棟 定休日:火曜日・水曜日
お電話の際には「家選びネットを見た」とお問い合わせください。
- ※定休日などにより、お問い合わせのお返事にお時間をいただく場合がございます。
- ※お急ぎの方は上記の電話番号より直接ご連絡ください。
































































