- 建売
- 建売
- ハウスメーカー
- パナソニック ホームズ/パナホーム
- 沿線名/駅名
- 秋葉バス「横手橋」バス停下車・徒歩7分〜8分駅
- 総区画数
- 96 区画
- 駅・バス停からの最短時間
- 7分
- 価格帯
- 4,750万円
- 土地面積
- 202.93㎡
- 所在地
- 静岡県袋井市久能2569-623
- 沿線名/駅名
- 秋葉バス「横手橋」バス停下車・徒歩7分〜8分
東海道本線袋井駅より距離4.4km〜4.5km
- 価格帯
- 4750万円(1区画)
- 最多価格帯
- 4700万円台(1区画)
- 販売戸数/総戸数
- 1区画/96区画
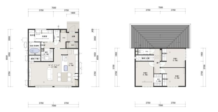
- 間取り
- 3LDK
- 建物面積
- 106.06m2
- 土地面積
- 202.93m2
- 開発面積(総面積)
- 35605.49㎡(内、当社3833.08㎡)
この物件のこだわりポイント
◇現地のおすすめ◇
・敷地面積200㎡(約60坪)以上、ゆとりの生活をご提案
・家全体を均一な温度に保ち、快適な空間を創り出す全館空調「エアロハス」を搭載
・パントリーやWICなど収納充実、暮らしやすさを兼ね備えた室内干し用スペースなど+α空間
・信州街道沿い、学校や各種生活施設が身近に揃った安心の住環境
◇パナソニックホームズのおすすめ◇
・安心、安全な暮らしを守る、繰り返し地震に強い耐震構造を採用
・美しさを保ち将来のメンテナンス費用を軽減できる光触媒タイルの外壁を採用
・自然の力を生かして省エネ換気、健やかで健康な暮らしを実現
お気軽にお問い合わせください!現地見学予約受付中
- 建ぺい率・容積率
- 建ぺい率:60%、容積率:200%
- 地目
- 宅地
- 物件構造
- 軽量鉄骨2階
- 用途地域
- 第1種住居地域
- 完成予定日
- 2026年6月初旬完成予定
- 販売時期
- 2026年3月下旬
- 引渡可能時期
- 契約後3ヵ月
- 売主
- (株)パナホーム静岡
- 販売会社名(取引態様)
- (株)パナホーム静岡(売主)
- 情報提供元
- (株)パナホーム静岡
- お問い合わせ先
(株)パナホーム静岡西部営業部 0120-32-3603
- 開発許可または建築確認番号
- 第2025確認建築静建住ま1053号
- 宅建番号その他
(株)パナホーム静岡西部営業部
〒435-0051 静岡県浜松市中央区市野町2448
知事(12)第4331号
(公社)静岡県宅地建物取引業協会会員:東海不動産公正取引協議会加盟業者
- 備考欄
公営水道、本下水、個別LPG
- 情報提供日
- 2026-05-01
- 次回更新予定日・取引有効期限
- 2026-05-08
静岡県袋井市周辺マップ
- ※分譲地は地図中心の赤いピン付近に所在します。(実際の物件所在地から多少ずれることがあります)
- ※地図上に表示される物件・施設の情報はおおよその所在地を表すものであり、実際の所在地とは異なる場合がございます。
- ※周辺施設は、分譲地の所在地から半径3km以内の施設(大型施設は半径5km以内)のみを表示しています。
- 徒歩
- 電車
- この機能は準備中です。
- 車
- ※上記に表示されている地図・ルート検索・周辺施設情報は、Google社が提供するGoogleMapより物件の所在地に合わせて取得しております。そのため、表示されている施設情報および物件からの距離・移動時間などは実際と異なる場合があります。正確な情報は各分譲地にお問い合わせください。
パナソニック ホームズ / パナホーム静岡
静岡県浜松市中区砂山町324-8 第一伊藤ビル7階 定休日:火曜日・水曜日
お電話の際には「家選びネットを見た」とお問い合わせください。
- ※定休日などにより、お問い合わせのお返事にお時間をいただく場合がございます。
- ※お急ぎの方は上記の電話番号より直接ご連絡ください。





































