- 土地のみ
- 土地のみ
- ハウスメーカー
- 積水ハウス/セキスイハウス
- 沿線名/駅名
- 京王井の頭線「高井戸」駅
- 総区画数
- 3 区画
- 駅・バス停からの最短時間
- 8分
- 価格帯
- 11,100万円
- 土地面積
- 132.05㎡
- 所在地
- 東京都杉並区高井戸東2丁目592番1他1筆
- 沿線名/駅名
- 京王井の頭線「高井戸」駅まで徒歩8分(最長)
京王井の頭線「浜田山」駅まで徒歩16分(最長)
京王線「八幡山」駅まで徒歩19分(最長)
- 価格帯
- 1億1,100万円
- 販売戸数/総戸数
- 1区画/3区画
- 土地面積
- 132.05 ㎡(約39.94坪)
この物件のこだわりポイント
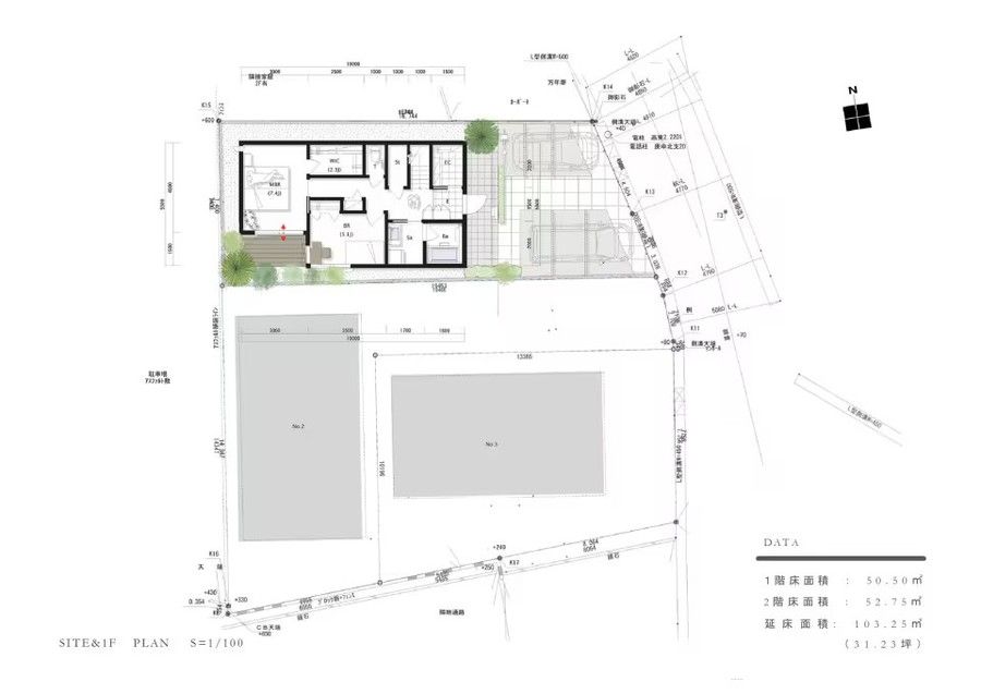
【参考プラン】
参考プラン例/No.1
建物参考価格:5,940万円(建物本体価格+消費税込)
延床面積:103.25㎡ (31.23坪)
■1F面積:50.50㎡
■2F面積:52.75㎡
※このプランの場合、外構工事費用、登記費用などで、約310万円が別途必要です。
※駐車スペースを2台分確保した参考プランですが、プランや車種により2台分の確保が難しい場合がございます。
※参考プランは、当社が紹介する一例で、これを義務付けるものではありません。
※プラン中の家具・車等は参考価格には含まれていません。
※外観パース・内観パースは参考プランを基に描き起こしたイメージパースです。
※パースに描かれている樹木は、成長した1~2年後のイメージです。
- 建ぺい率・容積率
- 40%・80%
- 地目
- 宅地
- 用途地域
- 第一種低層住居専用地域
- 完成予定日
- 2024年7月 完成済(No.1)
- 販売時期
- 先着順受付中
- 売主
- 積水ハウス株式会社
- 販売会社名(取引態様)
- 積水ハウス株式会社(土地売主)
- 情報提供元
- 積水ハウス株式会社 東京北支店
- お問い合わせ先
積水ハウス株式会社 東京営業本部 定休日:火曜・水曜・祝日 ※当会場では、購入のお申込みは受け付けておりません。 営業時間:9:00~18:00 TEL:0120-776-511
- 宅建番号その他
積水ハウス株式会社 東京北支店
東京都豊島区西池袋1-11-1 メトロポリタンプラザビル11F TEL:03-3984-5261
国土交通大臣(16)第540号
一般社団法人不動産協会会員、公益社団法人首都圏不動産公正取引協議会加盟
- 備考欄
【建築条件】
本分譲地の土地売買契約は、契約締結後3ヶ月以内に売主である積水ハウス株式会社との間で建築工事請負契約が成立することを条件として効 力を生じます。期限までに、建築工事請負契約が成立しなかったときは、土地売買契約の無効が確定し、受領済の手付金等は、全額無利息にてすみやかに返還いたします。●私道負担面積:私道負担あり。No.1:1.37平方メートル
●道路幅員:4.8m アスファルト舗装●都市計画:市街化区域
●主たる設備等の概要
電気:東京電力、ガス:都市ガス、水道:公営水道、雨水:公共下水道、雨水:公共下水道その他の重要な事項
●まちなみガイドライン:本分譲地では、快適で良好な住環境を皆様に提供するために外構等について基本的なガイドラインを設けております。
●掲載の徒歩分数は、1分あたり80mで計算し、1分未満は切り上げております。距離・分数については、現地から施設までの距離・所要時間を表示しております。
●坪表示は、1平方メートル=0.3025坪で換算し、小数点第三位以下は、切り捨てております。※掲載の現地写真には、契約済区画を含みます。(撮影年月:2025年11月)
- 情報提供日
- 2026-03-27
- 次回更新予定日・取引有効期限
- 2026-04-10
東京都杉並区周辺マップ
- ※分譲地は地図中心の赤いピン付近に所在します。(実際の物件所在地から多少ずれることがあります)
- ※地図上に表示される物件・施設の情報はおおよその所在地を表すものであり、実際の所在地とは異なる場合がございます。
- ※周辺施設は、分譲地の所在地から半径3km以内の施設(大型施設は半径5km以内)のみを表示しています。
- 徒歩
- 電車
- この機能は準備中です。
- 車
- ※上記に表示されている地図・ルート検索・周辺施設情報は、Google社が提供するGoogleMapより物件の所在地に合わせて取得しております。そのため、表示されている施設情報および物件からの距離・移動時間などは実際と異なる場合があります。正確な情報は各分譲地にお問い合わせください。
積水ハウス / 東京北支店
東京都豊島区西池袋1-11-1(メトロポリタンプラザビル11階) 定休日:毎週 火曜・水曜・祝日
お電話の際には「家選びネットを見た」とお問い合わせください。
- ※定休日などにより、お問い合わせのお返事にお時間をいただく場合がございます。
- ※お急ぎの方は上記の電話番号より直接ご連絡ください。











































