【住友林業の戸建分譲】フォレストガーデン武蔵境
(分譲住宅)
マイレーティング
検討・比較をするためにこの物件を採点できます。
(採点した物件はお気に入りで確認できます)
都市と住環境が調和した武蔵境エリアに誕生
-THE MAISON-
大きく切り取られた窓と大きな吹き抜け、連続する空間、視線が外に、縦に、横に、抜けていく。
単なる広さではなく、そこで過ごす人の心に余裕を生み、人生にゆとりを与える。
「余白」が人生を豊かに。
大開口の先に広がる、暮らしの余白と未来の光。
余白が生み出す、静けさと可能性。
住まいは、余白を愉しむために進化する。
上質な日常をデザインするために誕生した、新時代の住友林業の家。
-BF構法-
強さとしなやかさを生む「ビッグフレーム構法」
大きな窓や広々としたリビング。そんな大開口や大空間を可能にしたのも、ビッグフレーム構法の強靭性。
間取りの自由度も高く、住まいへの夢を大きく広げます。
-耐震性-
耐力壁ともいえるビッグコラムと、メタルタッチ接合が優れた耐震性を実現。
自然災害の多い日本に最適で強靭な構造です。
一般的な柱5本分以上の太さの強靭なビッグコラム。
一般的な105㎜角の柱の約5倍、560㎜幅のビッグコラムを主要な構造材とするビッグフレーム構法。十分に乾燥させた板材(ラミナ)を何層にも貼り合せることにより、高い強度と優れた寸法安定性を実現しています。
-街並みデザイン-
住友林業のまちづくりのノウハウを結集して創りあげる全13邸の美しい街並み
自然との調和を大切にしてきた住友林業が、
そのまちづくりの粋を集めて描く、全13邸の美しい街並み。
都市の利便性と、静穏な住環境が共存する、上質な暮らしの舞台がここに誕生します。
- 所在地
- 東京都武蔵野市境南町四丁目1512番126他(地番)
- 沿線名/駅名
- JR中央線「武蔵境」駅へ徒歩11〜12分
西武多摩川線「武蔵境」駅へ徒歩11〜12分
- 価格帯
- 未定
- 販売戸数/総戸数
- 未定/13戸
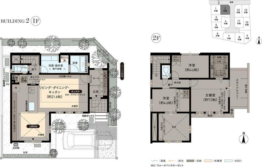
- 間取り
- 3LDK・4LDK
- 建物面積
- 93.56㎡~98.74㎡(28.30坪~29.86坪)
- 土地面積
- 120.1㎡~126.27㎡(36.33坪~38.19坪)
この物件のこだわりポイント
■コンセプト
・無電柱・インターロッキングで、安全性と景観を両立
・太陽光発電・蓄電池を標準搭載
・暮らしやすさと快適性を追求したプランニング
■アクセス
・JR中央線・西武多摩川線 武蔵境駅まで徒歩11分~12分
新宿駅や東京駅へダイレクトアクセス可
■ロケーション
・クイーンズ伊勢丹武蔵境店まで徒歩11~12分
・nonowa武蔵境まで徒歩11~12分
・境南西公園まで徒歩1分
■充実のサポート体制
・外壁、屋根、防水バルコニーの 30 年間メンテナンスフリーに加えて
構造躯体、防水の引渡から「最大60年間」の長期保証システム
・住まいの補修・修理など、コールセンターで24時間365日受付
- 予告広告
- この物件は予告広告です。販売開始までは、契約または予約の申込み・申込み順位の確保はできません。詳しい情報は「資料請求」にてご確認ください。
- 建ぺい率・容積率
- 建ペい率:40%、容積率:80%
- 地目
- 宅地
- 物件構造
- 木質梁勝ちラーメン構造(ビッグフレーム構法)2階建
- 用途地域
- 第1種低層住居専用地域
- 完成予定日
- 2026年4月下旬 他 予定
- 建築年月
- 2026年4月下旬 他 予定
- モデルハウス公開時期
- 資料請求受付中
- 販売時期
- 2026年5月下旬予定
- 引渡可能時期
- 2026年7月中旬 他 予定
- 売主
- 住友林業(株)住宅事業本部 首都圏まちづくり支店
- 販売会社名(取引態様)
- 住友林業ホームサービス(株)
- 情報提供元
- 住友林業(株)住宅事業本部 首都圏まちづくり支店
- お問い合わせ先
住友林業株式会社 住宅事業本 部首都圏まちづくり支店 TEL:0120-989-675 営業時間/10:00~17:00 定休日/水・日曜、祝日
- 開発許可または建築確認番号
- 第東日本25-0972(令和7年8月20日付)他
- 宅建番号その他
<売主>
宅地建物取引業者免許番号 : 国土交通大臣免許(15)第687号 建設業許可番号 : 国土交通大臣許可(特-7)第4237号
(一社)不動産協会会員 (公社)首都圏不動産公正取引協議会加盟
住友林業株式会社 住宅事業本部 首都圏まちづくり支店
〒160-0023東京都新宿区西新宿1-24-1 エステック情報ビル12階
TEL:03-6861-2200<販売提携(代理)>
国土交通大臣(16)第000220号
(一社)不動産流通経営協会会員 (一社)不動産協会会員(公社)首都圏不動産公正取引協議会加盟
住友林業ホームサービス(株)
〒160-0023 東京都新宿区西新宿3-2-11 新宿三井ビルディング二号館11階
- 備考欄
私道負担:有(分譲地内開発道路)※各区画持分:225.03㎡の11分の1(1号棟・13号棟は除く)
接道・道路幅員:分譲地北側:公道約5.1m~5.2m(アスファルト舗装)、分譲地内開発道路:私道約5.0m(インターロッキング舗装)施設・設備:東京電力(他の小売電気事業者の選択も可)、都市ガス、上水道:公営・私設、下水道:公営・私設
《資料請求受付中》
資料請求を受け付けております。
また、住居を探されるにあたり、ご不明な点やご要望、疑問に思っていることはございませんか。どんな些細なことでもお気軽にお問い合わせ下さいませ。お電話では10:00~17:00(火・水定休 ※祝日除く)まで受付けております。
- 情報提供日
- 2026-04-13
- 次回更新予定日・取引有効期限
- 2026-04-27
東京都武蔵野市周辺マップ
- ※分譲地は地図中心の赤いピン付近に所在します。(実際の物件所在地から多少ずれることがあります)
- ※地図上に表示される物件・施設の情報はおおよその所在地を表すものであり、実際の所在地とは異なる場合がございます。
- ※周辺施設は、分譲地の所在地から半径3km以内の施設(大型施設は半径5km以内)のみを表示しています。
- 徒歩
- 電車
- この機能は準備中です。
- 車
- ※上記に表示されている地図・ルート検索・周辺施設情報は、Google社が提供するGoogleMapより物件の所在地に合わせて取得しております。そのため、表示されている施設情報および物件からの距離・移動時間などは実際と異なる場合があります。正確な情報は各分譲地にお問い合わせください。
- ※定休日などにより、お問い合わせのお返事にお時間をいただく場合がございます。
- ※お急ぎの方は上記の電話番号より直接ご連絡ください。
住友林業(まちづくり事業部 首都圏まちづくり支店)が販売している物件
大手ハウスメーカーのおすすめ物件
ハウスメーカー8社が販売している武蔵野市の物件
ハウスメーカー8社が販売している近隣エリアの物件
【Panasonic Homes】パークナードテラス国分寺北町
東京都国分寺市
JR中央線「国立」駅バス19分 「東京創価小学校」バス停徒歩5分
6,880万円〜 17区画 徒歩5分












































